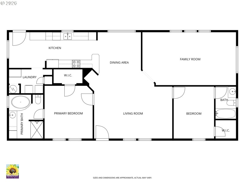
Located in the popular 55+ community of Creekside Estates, this 2005 Palm Harbor double-wide offers a comfortable and spacious layout in a convenient central location close to shopping and restaurants in Vancouver. With 1,566 square feet, this two-bedroom, two-bath home features a fantastic floor plan with bedrooms positioned on opposite ends of the home, each with its own private bathroom—ideal for privacy and flexibility. The kitchen is a standout feature with an abundance of cabinets, pull-out shelving, and all appliances included-refrigerator, washer, dryer and chest freezer. The main living area offers an open layout along with a large vaulted family room, creating plenty of space to relax or entertain. Large windows throughout the home bring in abundant natural light, making the interior feel bright and welcoming. The home has recently been refreshed with all new interior paint and new carpet, and the roof was replaced just 2 years ago. Additional features include forced-air heat, a convenient carport, a large storage shed, and an extra parking pad behind the home. Residents of Creekside Estates enjoy an active and friendly community with excellent amenities, including a clubhouse with a large party room, heated pool and spa, workout room, library, and a full calendar of activities offered each month. This is a great opportunity to enjoy easy living in one of Vancouver’s most sought-after 55+ communities.
Fourth Plain S on 121st Ave L at Creekside Estates
Dwelling Type: Residential
Subdivision: CREEKSIDE ESTATES
Year Built: 2005, County: US
Fourth Plain S on 121st Ave L at Creekside Estates
Listing is courtesy of Premiere Property Group, LLC
Sign in to your account to continue