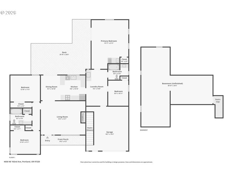
Rare opportunity on a private, level .41-acre R7-zoned lot! This 4BR/2BA ranch offers 1,652 sq ft on the main level with all bedrooms and baths conveniently on one floor, plus a full high-ceiling basement with partial finishes and excellent potential for additional living space, storage, or possible ADU conversion (buyer to verify). The lot is fenced, treed, and offers a hard-to-find sense of privacy while still being centrally located with easy access to freeways and the airport. Ideal setup for investors, flippers, or buyers looking to maximize the potential of a larger parcel. Home is livable but in need of significant repairs and updates, including roof replacement, exterior dry rot repair, garage door replacement, and deck repairs. Interior is ready for a full cosmetic overhaul. Existing features include a spacious primary suite with wet bar and slider to back deck, wood-burning fireplace, newer laminate flooring, some original wood floors, tile flooring in kitchen and laundry, and attached laundry room. Major systems include a newer electrical panel and service (2025), heat pump for heating and cooling, and some updated windows. Outside features fruit trees and 2 outbuildings - Start your urban farm here! Bring your vision and toolbelt—this is a true fixer with strong upside potential. Likely cash or rehab financing only but seller open to creative options. [Home Energy Score = 1. HES Report at https://rpt.greenbuildingregistry.com/hes/OR10246168]
102nd north of Fremont
Dwelling Type: Residential
Subdivision: Parkrose
Year Built: 1949, County: US
102nd north of Fremont
Listing is courtesy of Redfin
Sign in to your account to continue