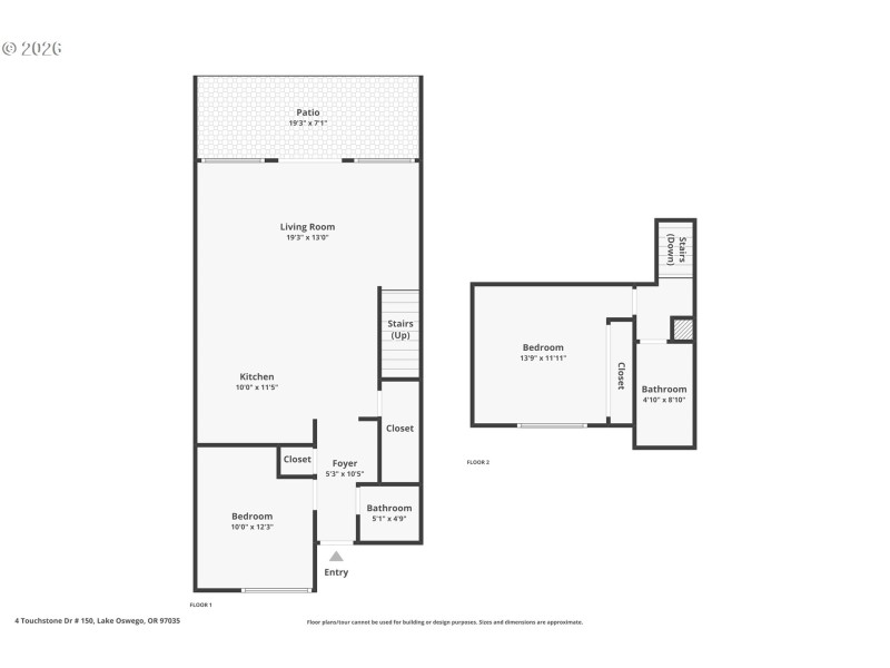
Unit 150, Opportunity Awaits! This light filled true 2 bedroom, 2 bath condo is ready for your personal touch. This home feature a functional open concert floor plan with laminate flooring throughout, with a wall of windows thats brings in an abundance of natural light. A true blank slate, this unit could benefit from some TLC—ideal for buyers looking to customize and make it their own or add value and rental appeal. All appliances are included, offering a great starting point for your vision. Conveniently located near PCC, bus lines, and Mt. Park Recreation Center, with access to miles of scenic trails for relaxation and recreation. The Tanglewood community also offers a private pool—perfect for enjoying summer days.
Boones Ferry to Kerr Pkwy left on Touchstone
Dwelling Type: Residential
Subdivision: MOUNTAIN PARK
Year Built: 1970, County: US
Boones Ferry to Kerr Pkwy left on Touchstone
Listing is courtesy of The Agency Lake Oswego
Sign in to your account to continue