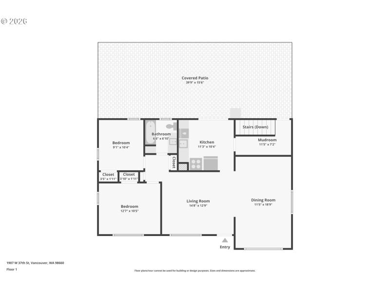
Charming mid-century home featuring hardwood floors, new paint upstairs and a huge finished basement offering flexible living space. Main level offers a spacious living room with Wood Feature wall, Modern kitchen with Granite countertops and newer Stainless Steel Appliances and a large Formal Dining room. A true Entertainer's Delight with a covered patio, hot tub gazebo, she/he shed and tool-shed. Oversized yard with beautiful landscaping has ample room for gardening or just relaxing outdoors! Conveniently located just minutes from Downtown Vancouver and Vancouver Waterfront and many amenities including restaurants, parks, and shopping options. Easy access to I-5 and SR 500 and close to Portland for commuting. This home blends vintage character with everyday convenience!
From Fourth Plain, N on Fruit Valley Rd, East on W 37th St. Home on the right.
Dwelling Type: Residential
Subdivision: FRUIT VALLEY
Year Built: 1951, County: US
From Fourth Plain, N on Fruit Valley Rd, East on W 37th St. Home on the right.
Listing is courtesy of Works Real Estate
Sign in to your account to continue