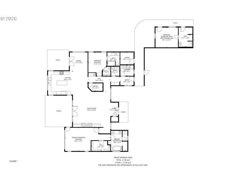
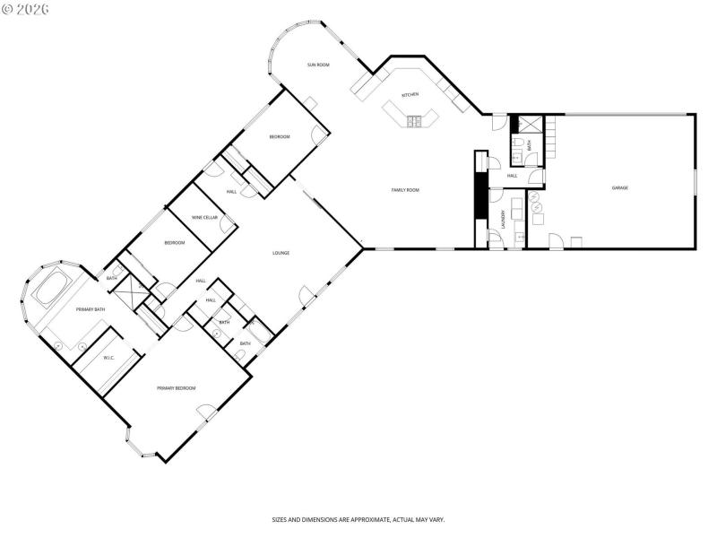
Two homes on 24.55 acres in heart of Willamette Valley Wine Country. Rare Two Home Estate featuring two separate single level homes with panoramic vineyard and valley views. This dual residence property offers flexibility, proven vacation rental Income and once in a lifetime opportunity to own a wine country compound featuring two separate single level homes with breathtaking panoramic valley and mountain views just minutes from Yamhill and Carlton. Set on 24.55 acres with 5 acres of Pinot Noir and Chardonnay vines, this property offers the perfect blend of luxury living, multi-generational flexibility, and income-producing potential in one of Oregon’s most desirable destinations. The modern farmhouse (built 2015) offers 2,728 sqft of luxury singlelevel living with 3 bedrooms and 3.5 bathrooms, each with en-suite baths,breezeway to oversized two car garage. Designed for both comfort and entertaining, the home features a chef’s kitchen with high-end appliances, engineered hardwood floors, fireplace, and covered outdoor living space positioned to capture extraordinary vineyard and valley views. Sold fully furnished, this home has operated as a highly successful short-term vacation rental with over 50 10/10 reviews, offering immediate turnkey income potential. The second residence (built 1996) spans 3,379 sqft and includes 3 bedrooms, 3 bathrooms, an attached two-car garage, spacious outdoor living areas, fire pit, and equally stunning views. Ideal for multi-generational living, guest quarters, caretaker housing, or additional rental income, the dual-home configuration provides versatility rarely found. This fully equipped estate includes vineyard, fruit trees, wooded acreage, large capacity well, city water availability, and two septic systems. Outbuildings including a workshop, barn, greenhouse, livestock buildings, and agricultural structures. Conveniently located moments from vibrant wine tasting rooms, craft breweries and popular farm to fork restaurants.
HWY 240- S on Yamhill Road
Dwelling Type: Residential
Subdivision: N/A
Year Built: 2015, County: US
HWY 240- S on Yamhill Road
Listing is courtesy of Cascade Hasson Sotheby's International Realty
Sign in to your account to continue