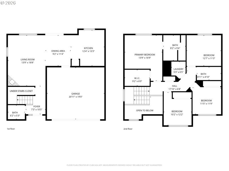
Newer detached Tigard home featuring 1744 square feet of living space, with recent updates like a brand new roof, new fencing, and a new garage door, that is becoming increasingly rare to find at this price point. The main level features high ceilings, a gas fireplace, and open living and dining spaces that connect easily to the kitchen, with granite countertops, stainless steel appliances, and an eating bar that works well for daily meals and casual entertaining. Upstairs, the primary suite is a spacious room with a walk-in closet and a bathroom with double sinks, and all four bedrooms including the laundry room all located on the same level. The fourth bedroom works well as an office, playroom, or flex space depending on your needs. The fenced backyard is spacious and low-maintenance, with space to relax, garden, or let pets play. Located just minutes from Cook Family Park, Bridgeport Village, Trader Joe’s, and downtown Tigard, with quick access to I-5 and Highway 217.
Head S on Hall Blvd, L on Ross St, R on 84th Ave, L on SW Norfolk Ln, home on right.
Dwelling Type: Residential
Subdivision: N/A
Year Built: 2000, County: US
Head S on Hall Blvd, L on Ross St, R on 84th Ave, L on SW Norfolk Ln, home on right.
Listing is courtesy of Real Broker
Sign in to your account to continue