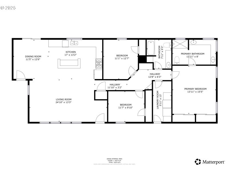
Welcome to 393 Knoll Terrace – a beautifully refreshed 3-bedroom, 2-bath home offering 1,792 sq. ft. of comfortable single-level living in one of Douglas County’s premier 55+ communities. Thoughtfully updated with quality finishes and modern touches, this home blends style, functionality, and peaceful surroundings. Step inside to a bright, open-concept living, dining, and kitchen area filled with natural light and enhanced by new recessed lighting that creates a warm and inviting atmosphere. The stunning remodeled kitchen features new hickory cabinetry, granite countertops, updated appliances, a new sink and faucet, modern cabinet hardware, and custom floating shelves in the dining area—perfect for both everyday living and entertaining. Fresh interior and exterior paint, updated lighting fixtures, and new bathroom vanity mirrors add to the home’s polished feel. The spacious primary suite offers a beautifully organized upgraded closet system, creating both comfort and convenience. Step outside to the private covered deck overlooking a tranquil creek setting—a peaceful retreat ideal for morning coffee or relaxing evenings surrounded by nature. The garage includes a built-in workbench and additional storage, while the new front door and refreshed exterior enhance the home’s inviting curb appeal. This move-in-ready home offers the perfect combination of modern updates, serene outdoor living, and low-maintenance lifestyle in a welcoming and active community.
I-5 to exit 98; R on Canyon-Riddle Rd, L on Samantha; R onto Knoll Terrace, Property on Right
Dwelling Type: Residential
Subdivision: N/A
Year Built: 2005, County: US
I-5 to exit 98; R on Canyon-Riddle Rd, L on Samantha; R onto Knoll Terrace, Property on Right
Listing is courtesy of Umpqua Legacy Realty
Sign in to your account to continue