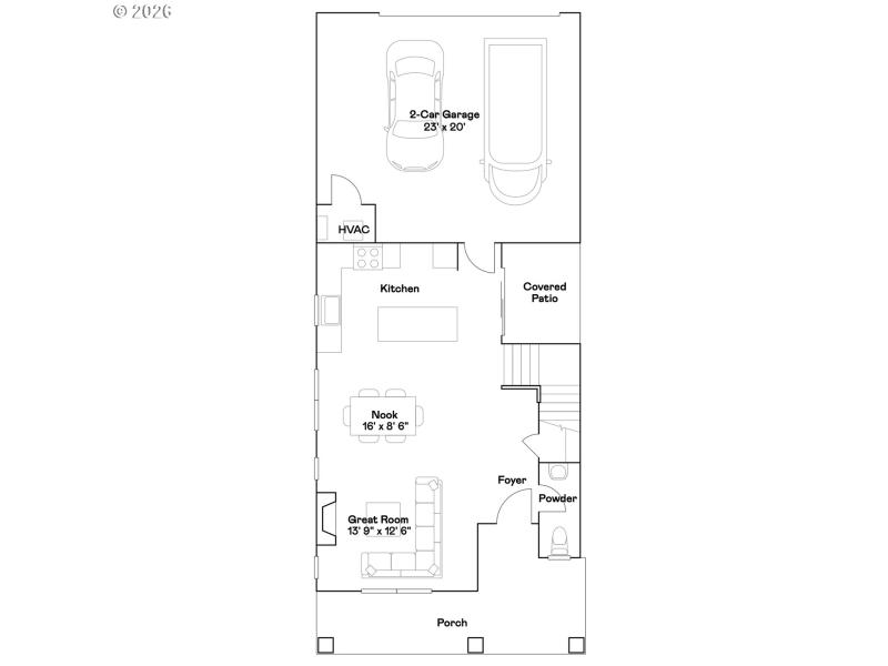
This new construction two-story home is located in a planned community with multiple parks, close to schools, shopping, dining, and freeway access. The main floor features an open concept design connecting the kitchen, living and dining areas, with a cozy fireplace in the great room creating a warm focal point. Upstairs, the Clark plan features 4 bedrooms, including a primary suite with an en-suite bathroom featuring a double vanity and walk-in closet. Interior highlights include quartz countertops, shaker-style cabinets, LVP (luxury vinyl plank) flooring in the entry, kitchen and Great Room, with LVT (luxury vinyl tile) flooring in the bathrooms. This home also includes central air conditioning, a refrigerator, washer and dryer, and blinds—all at no extra cost. Photos are of a similar home, but cabinet colors, counter tops & flooring are as shown. Homesite 142. Estimated completion: Summer 2026.
Exit 4B off OR-217 to SW Scholls Ferry Rd, continue to SW 165th Ave.Exit 4B off OR-217 to SW Scholls
Dwelling Type: Residential
Subdivision: SOUTH RIVER TERRACE
Year Built: 2026, County: US
Exit 4B off OR-217 to SW Scholls Ferry Rd, continue to SW 165th Ave.Exit 4B off OR-217 to SW Scholls
Listing is courtesy of Lennar Sales Corp
Sign in to your account to continue