Assumable Loan at low rate. Discounted rate options and lender fee future refinancing may be available for qualified buyers of this home. Possible low i
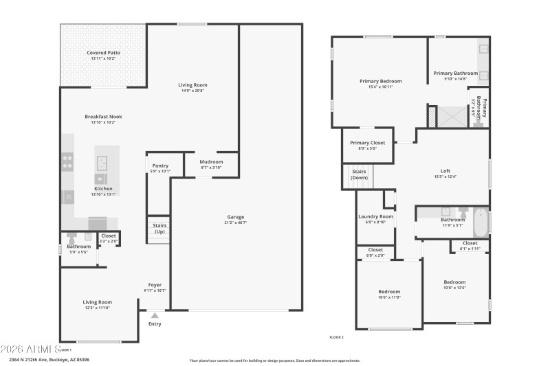
This inviting Buckeye home offers a functional layout. Upon entry, a formal living room creates a welcoming first impression, while the kitchen features a spacious island and flows seamlessly into the dining area and informal living space. A convenient mud room off the garage adds practicality, and upstairs you'll find a loft along with a primary bedroom complete with an ensuite bath featuring dual sinks and a walk-in shower. Two additional bedrooms provide flexibility.
Outside, the fully fenced backyard includes a covered patio, a cozy brick firepit area, and just the right amount of green space for relaxing
North on Sienna Hills Parkway. Right on Encanto, Left onto 212th Ave (Cul-de-sac)
Dwelling Type: Residential
Subdivision: SIENNA HILLS PARCEL 2 NORTH 5 SOUTH AMD
Year Built: 2021, County: N/A
North on Sienna Hills Parkway. Right on Encanto, Left onto 212th Ave (Cul-de-sac)
Listing is courtesy of Orchard Brokerage
Sign in to your account to continue