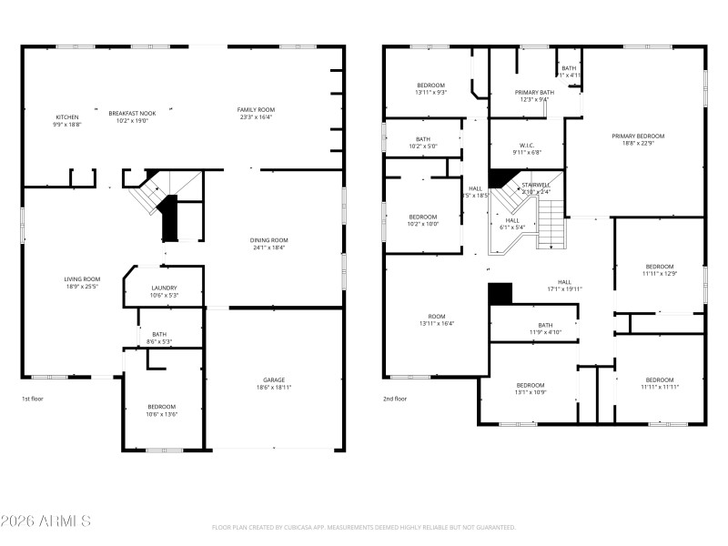
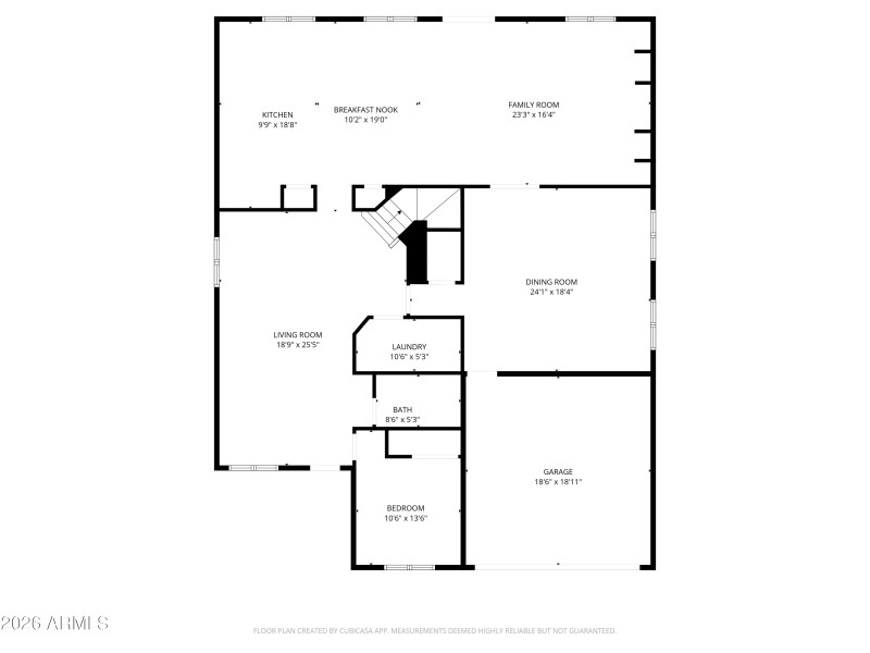
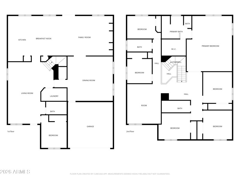
This impressive two-story home offers 7 bedrooms and 4 bathrooms with all bedrooms upstairs, providing privacy and space for everyone. The open floor plan features a kitchen island, built-ins, and a versatile loft ideal for work or play. Enjoy a welcoming front porch, a spacious backyard with a back porch, and added convenience with a storage rack in the 2-car garage—perfect for organized living and entertaining.
From Loop 101 (Agua Fria Fwy) Exit Peoria Ave, head west on Peoria Ave. Turn right on N 95th Ave, left on W Frank Ave, continue to 9567 W Frank Ave.
Dwelling Type: Residential
Subdivision: CAMINO A LAGO SOUTH UNIT 6
Year Built: 2008, County: N/A
From Loop 101 (Agua Fria Fwy) Exit Peoria Ave, head west on Peoria Ave. Turn right on N 95th Ave, left on W Frank Ave, continue to 9567 W Frank Ave.
Listing is courtesy of Mainstay Brokerage
Sign in to your account to continue