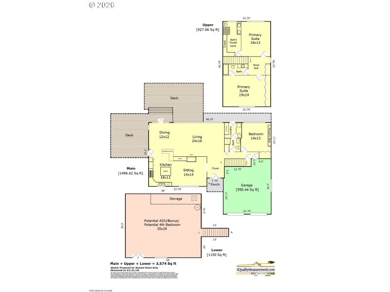
Have you ever dreamed of living on the water, but don’t want to be out in the country? This gorgeous property in the coveted West Linn suburb of Portland just might be your dream home. Imagine waking up to the feeling of being on vacation every day. Watch the otters and seals play, see the neighborhood bald eagle flying by, watch the boats on the Willamette River, and enjoy water sports from your very own shoreline. And you’re just a short stroll to Starbucks, Market of Choice, restaurants and other amenities. Just down the street is Maddox Woods, the Greenway Trail and Burnside Park. Pop on to the nearby 205 to shoot up to the airport, or take 43 through town and into Lake Oswego, and downtown Portland beyond. Inside, you’ve got 3 bedrooms, with the potential of 5, 3 full baths, and just over 3,500 square feet of living space. When you walk through the front door, you’ll feel like you’re on a houseboat with the breathtaking water views, and yet you are above the flood zone. Enjoy indoor/outdoor living with the extensive deck, and over a half acre of lot size gives you room to breathe. The lower level is whatever you’d want or need it to be! An ADU, a 4th bedroom suite, a large bonus room, or a home office with its own entrance. The upper floor is also an area you can customize. Keep the dual primary suites, or turn the south large bedroom into two. This home has a new roof and many updates throughout. Enjoy amazing West Linn schools, Clackamas County, close proximity to Portland, and most of all, a waterfront life. Come see this magical home today.
from Hwy 43, north on Holly, left/west on River
Dwelling Type: Residential
Subdivision: N/A
Year Built: 1978, County: US
from Hwy 43, north on Holly, left/west on River
Listing is courtesy of Wise Move Real Estate
Sign in to your account to continue