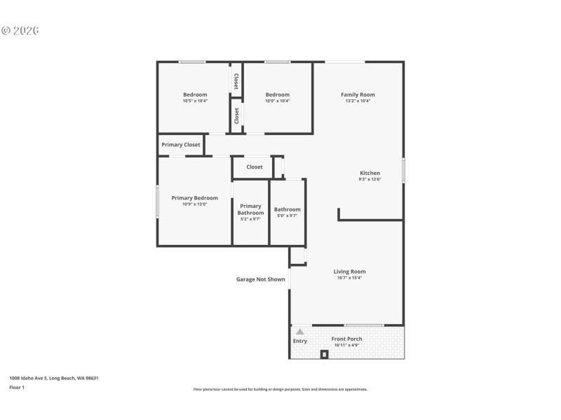
Just blocks from the beach, this charming single-level home offers the perfect blend of comfort and coastal living in beautiful Long Beach, Washington, featuring 3 bedrooms and 2 bathrooms with an attached two-car garage. A covered front entrance welcomes you into a bright and airy living room with vaulted ceilings, abundant natural light, and durable LVP flooring. The spacious kitchen is ideal for everyday living and entertaining, complete with an eat-up bar, generous counter space, and plenty of cabinetry for storage. The adjoining family room and dining area overlook the backyard, creating a warm and inviting space to gather, with a sliding glass door that leads to a fully fenced backyard featuring a patio—perfect for summer BBQs, relaxing evenings, or pets at play—and a large shed for additional storage of tools, beach gear, or hobbies. Down the hallway, you’ll find a full bathroom and three comfortable bedrooms, including a primary suite with its own private ensuite bath, making this home an excellent option for a full-time residence, beach getaway, or investment opportunity just moments from the sand and surf.
South of Pacific Ave S, Left on 10th St S, Right to Idaho Ave S
Dwelling Type: Residential
Subdivision: N/A
Year Built: 2009, County: US
South of Pacific Ave S, Left on 10th St S, Right to Idaho Ave S
Listing is courtesy of Opt
Sign in to your account to continue