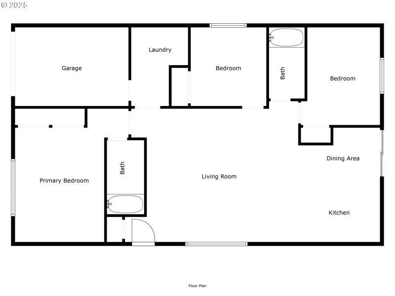
INVESTOR SPECIAL! Instead of looking for your next remodel project, flip this new construction opportunity in the heart of Roseburg! Owner financing terms considered. Framed, dried-in, and well on its way to the finish line. This 3-bedroom, 2-bath home offers 1,342 square feet with a modern single-level layout, attached garage, and alley access with additional RV parking potential. Major progress has been made, and now it’s ready for the right buyer to take it across the finish line. Inside, you’ll find a wide-open living, dining, and kitchen area. Drywall is up and finished, HVAC ducting installed, and flooring has already been laid through the main living areas. The primary suite is positioned privately from the secondary bedrooms and includes an en-suite bath. Plumbing, electrical, and rough-ins are in place, with bathrooms ready for fixtures and finish work. The kitchen is framed and ready for cabinetry, counters, and appliances. Situated on a manageable lot directly across from the courthouse and just blocks from downtown Roseburg, this location makes sense for resale or rental. Alley access offers flexibility for additional parking, and the attached garage adds value and functionality. This is not your usual flipper's full gut remodel; instead, it's a near-complete new build being sold as-is. Ideal for contractors looking for their next project, investors seeking a strong margin opportunity, or builders who want to control the final finishes and maximize return. Bring your crew, run your numbers, and finish it your way. Owner is willing to carry note for the right buyer. Seller carry terms negotiable. Schedule your private tour today!
E on Diamond Lake Blvd, R on Fowler St, R on Court St, L on Pitzer St to Address
Dwelling Type: Residential
Subdivision: N/A
Year Built: 2024, County: US
E on Diamond Lake Blvd, R on Fowler St, R on Court St, L on Pitzer St to Address
Listing is courtesy of Different Better Real Estate
Sign in to your account to continue