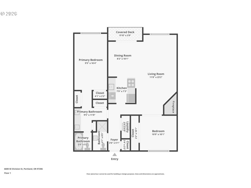
Single-level condo with 2 bedrooms and 2 bathrooms featuring an open floor plan. The living area includes laminate flooring, a fireplace, and access to a covered balcony. The kitchen offers granite countertops and includes all appliances. The primary bedroom has ample closet space and an attached bathroom. The secure building features a tranquil central courtyard, an elevator, and community bike storage. An off-street parking space #18 and a dedicated storage unit are also included.
Division at 66th. South side of street
Dwelling Type: Residential
Subdivision: N/A
Year Built: 1983, County: US
Division at 66th. South side of street
Listing is courtesy of Redfin
Sign in to your account to continue