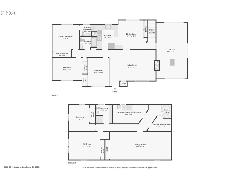
Tons of potential with this Ranch home on 1/4 acre lot! Excellent location within minutes to Centennial Middle and High Schools, shopping, parks, and other local amenities. Primary bedroom on the main level with en suite bath w/walk-in shower. Large living room with fireplace and built-in features. Good size kitchen with dining area offering a large pantry space. Finished basement with family room, full bath, laundry room, and additional living spaces. Head outside to the huge backyard with large tool shed, ready for all of your Spring touches. Large lot just over 1/4 acre provides many potential options such as adding an ADU, shop, etc. Absolutely a must see!
SE Division St to SE 190th Ave
Dwelling Type: Residential
Subdivision: N/A
Year Built: 1958, County: US
SE Division St to SE 190th Ave
Listing is courtesy of Redfin
Sign in to your account to continue