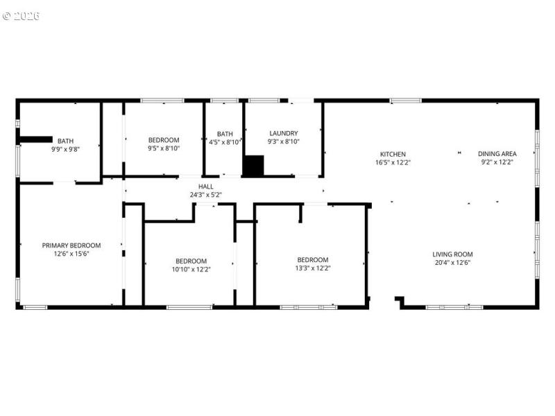
Welcome to this rare 4 bedroom, 2 bathroom, 1,782sqft home on a corner lot. Located at Mountain View Mobile Estates, an all ages mobile home community. Walk into a fresh remodel that includes a brand-new roof, fully remodeled kitchen, new bathrooms, new flooring, and more. The bright, open layout offers great flow for everyday living. Enjoy hosting in your massive living room open to the kitchen with a large center island, ample space for dining room table. Enjoy 4 generously sized bedrooms with closets and a larger than normal primary bedroom with full bath. The corner lot provides added space and privacy. Outside you have a nice yard space with storage shed. A must see property with hard-to-find space and a fully move in ready atmosphere. Space rent is $1,425 am month.
SW Beef Bend Rd to mobile home park, all the way down to #51 on corner
Dwelling Type: Residential
Subdivision: N/A
Year Built: 1990, County: US
SW Beef Bend Rd to mobile home park, all the way down to #51 on corner
Listing is courtesy of Keller Williams Realty Portland Premiere
Sign in to your account to continue