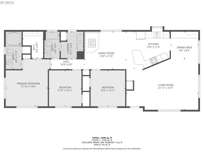
Welcome to your peaceful escape nestled on 1.24 acres of wooded privacy, close to McMinnville . This is a 1978 double-wide manufactured home that offers 1440 square feet of comfortable living space with 3 bedrooms,2.5 bathrooms, perfect for anyone looking for a quiet retreat. Step onto the large, covered porch, ideal for morning coffee or evening relaxation while enjoying the peaceful views of nature all around. Inside, the home features a practical layout. 3 bedrooms, the primary suite includes a connected bath. The home features a living room with a dining room and also a family room with a wood stove off of kitchen. Outside, the property shines with mature trees, open space for gardening or recreation and a separate shop building complete with heating and electrical service and an additional garden shed. This home is on a well and septic but has McMinnville electrical.
West on Bakercreek, turn right on Willis, Home is left of Willis Rd
Dwelling Type: Residential
Subdivision: N/A
Year Built: 1978, County: US
West on Bakercreek, turn right on Willis, Home is left of Willis Rd
Listing is courtesy of Baker Street Real Estate, LLC