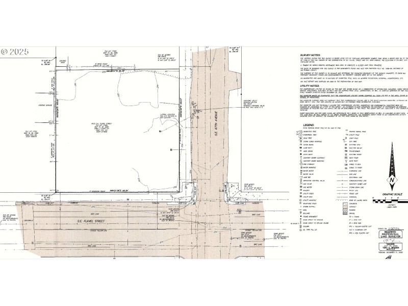
Calling all builders and developers! This is your chance to capitalize on Portland’s infill zoning and middle housing incentives. The double corner lot is located in one of Portland's most desirable growth areas near schools, parks, and walkable neighborhood amenities. It has been fully cleared of trees and structures and is perfectly level—-ready for your next project. Multiple build options make this property ideal for a variety of business models and investment strategies. Work with the city to create a charming cottage cluster, or easily split the lot into two parcels to accommodate up to eight residential units. Several other product types and configurations can be accommodated here in pursuit of the highest and best use for you. Buyers will need to do all of their due diligence with the city to explore all that this lot has to offer. Enjoy massive cost savings with no SDC fees for the next three years! All utilities, water, sewer, and power are available for connection, and a corner ADA ramp has already been installed. Survey will be included with the sale. Don’t miss this incredible opportunity, contact your agent today for details!
Double Corner Lot at SE 67th and SE Flavel
Dwelling Type: Land
Subdivision: N/A
Year Built: N/A, County: US
Double Corner Lot at SE 67th and SE Flavel
Listing is courtesy of All County Real Estate
Sign in to your account to continue