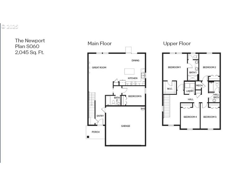
New construction corner homesite with a covered patio in Happy Valley! The Newport floor plan offers 5 bedrooms, 3 bathrooms, and a spacious 2,045 square feet of thoughtfully designed living space. This two-story layout includes a full bedroom and bathroom on the main floor, ideal for a guest room or home office with added privacy. The open concept design flows through the living room, dining area, and kitchen, where you’ll find stylish shaker cabinetry, solid surface countertops, stainless steel appliances, a large kitchen island, pantry, and a gas free-standing range oven. Cozy up by the fireplace, accented with floor-to-ceiling shiplap, for the perfect movie night setting. Upstairs, four additional bedrooms provide space for everyone, while the convenient upper-level laundry room makes daily routines easier. The primary bedroom is a relaxing retreat with an en suite bathroom, double vanity, walk-in shower, and a large walk-in closet. The upstairs hall bath is centrally located for easy access. Receive a closing cost credit with use of builder’s preferred lender, reach out for more details. Avery Terrace is located just minutes away from incredible dining options and shopping centers like Happy Valley Crossroads, and Happy Valley Town Center. Photos are representative of plan only and may vary as built. Schedule a tour today and secure your gorgeous new home at Avery Terrace!
SE 172nd, SE Maple hill Ln, SE MIddleton, Left on SE Crossland St
Dwelling Type: Residential
Subdivision: N/A
Year Built: 2026, County: US
SE 172nd, SE Maple hill Ln, SE MIddleton, Left on SE Crossland St
Listing is courtesy of D. R. Horton, Inc Portland
Sign in to your account to continue