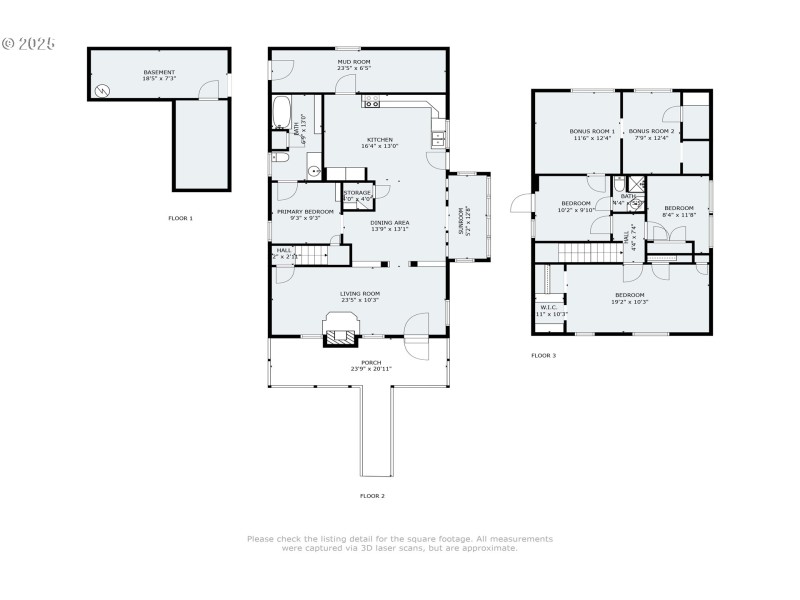
We have an inspection report for your viewing! Own a peice of history on railroad ave! This 1920 built home is full of character and potential, featuring 4 bedrooms plus 2 bonus rooms that could easily serve as extra bedrooms, an office, or hobby space. Inside you'll find a cozy living room for sitting in front of the fireplace, a spacious kitchen, and tons of storage throughout, while outside, major updates have already been taken care of with a brand-new roof (2024), fresh siding, and new paint. While this home still needs some work to shine its brightest, the solid bones and vintage charm make it a true fixer-upper opportunity. As the street name suggests, it is infact located right next to the railroad. This property is ideal for anyone looking to restore and customize a classic home to their taste.
hwy 58 E, to hills street, turn right before railroad crossing
Dwelling Type: Residential
Subdivision: N/A
Year Built: 1920, County: US
hwy 58 E, to hills street, turn right before railroad crossing
Listing is courtesy of United Real Estate Properties