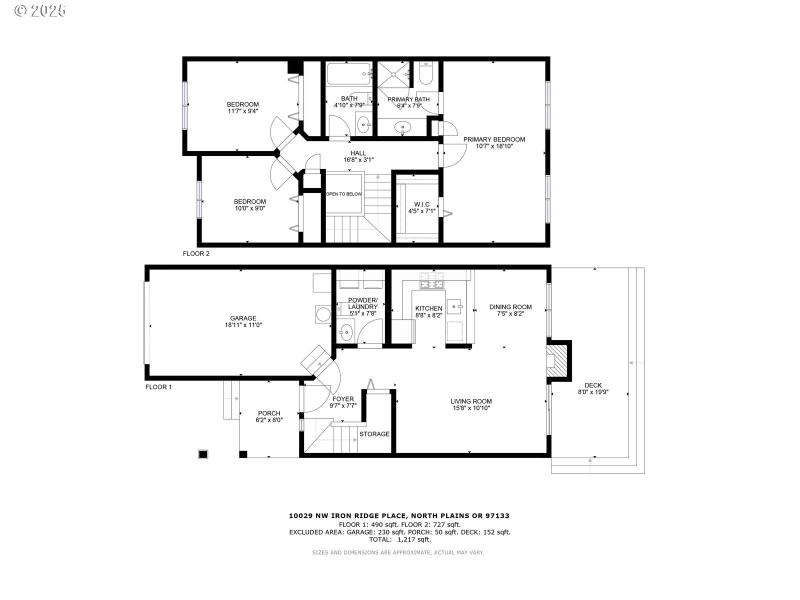
Welcome to this beautifully updated 3-bedroom, 2.5-bath townhouse conveniently located in North Plains with quick access to Hwy 26. This bright and inviting home features brand-new designer-selected interior finishes including LVP flooring on the main level, new carpet upstairs, and fresh interior paint throughout. The living room offers a cozy gas fireplace and abundant natural light, opening to a generously sized fenced backyard and brand-new deck—perfect for relaxing or entertaining.The oversized vaulted primary suite boasts a walk-in closet, built-ins cabinets, and attached bathroom with walk-in shower, accompanied by two additional bedrooms and a full hallway bath upstairs. The main level includes a convenient powder room that doubles as a laundry room. A single-car garage with brand new concrete coating, driveway parking, designated street parking, and gas furnace and water heater complete this move-in–ready home with a fantastic layout. No HOA!
Hwy 26, North on Glencoe Rd, Left on Highland Ct, Right on Iron Ridge Pl
Dwelling Type: Residential
Subdivision: N/A
Year Built: 2000, County: US
Hwy 26, North on Glencoe Rd, Left on Highland Ct, Right on Iron Ridge Pl
Listing is courtesy of Windermere West LLC
Sign in to your account to continue