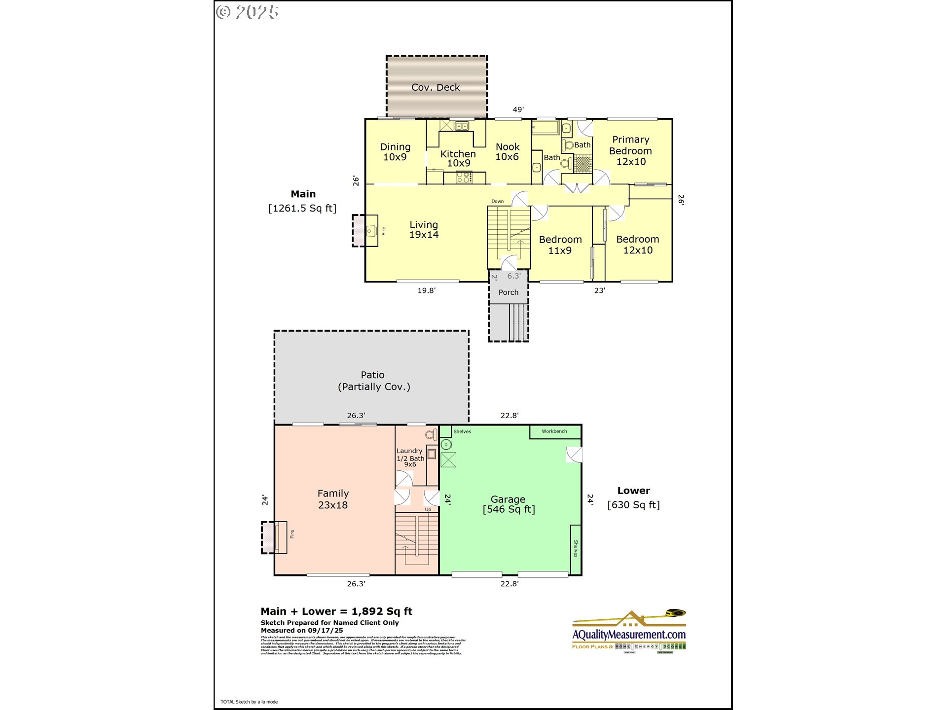
Discover the perfect blend of comfort and space in this beautifully updated split-level home near Aloha High School and Hazeldale Park. Nestled on a large, flat fenced lot - just shy of a quarter acre, it’s ideal for gardening, outdoor play, entertaining and RV or boat parking. Inside, fresh paint, new carpet & luxury vinyl plank flooring, and abundant natural light create a welcoming feel. The new stylish kitchen features wood cabinetry, quartz countertops, deep sink with sleek faucet, and a new refrigerator. Enjoy year-round comfort with a brand-new gas furnace and central AC. Two wood-burning fireplaces add warmth and charm, while the expansive lower-level family room offers endless versatility. All appliances included. Convenient to parks, shopping, and local dining — this home truly has it all!
185th, west on Rosa, south on 189th to Ellerson
Dwelling Type: Residential
Subdivision: Near Aloha High School
Year Built: 1972, County: US
185th, west on Rosa, south on 189th to Ellerson
Listing is courtesy of Where, Inc
Sign in to your account to continue