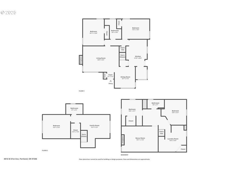
Gorgeous mid century bungalow with extensive remodel and upgrades. Impeccable condition, 20+ years owner, lovely hardwood floors through the main and upper levels. Amazing list of upgrades includes but is not limited to fresh interior paint, wonderful remodeled kitchen with quartz counters, full tile backsplash, high end stainless steel appliances including Wolf gas range, Asko dishwasher, Fisher and Paykel refrigerator and a very cool beveridge center/wet bar. All windows have been replaced with Milgard Tuscany Series vinyl windows. A New Mitsubishi Hyper Heat Pump was installed in 2016 and in 2020 the 50 year rated roof was installed with all new plywood sheathing on both the home and the garage, brand new Hardi Plank siding and brand new 200amp electrical panel were also installed. Full bathrooms are found on each level of the home. 2 bedrooms on the main level, you will love the primary suite upstairs with tiled bath and heated floors with an adjoining office or craft room. 2 bonus rooms on the lower level give the potential for 5 bedrooms or guest rooms for company. The lower level also features a very nice theater room with flat screen tv included and a big spacious laundry room with lots of cabinets/storage, washer and dryer included. Very nice private fenced backyard and there are in ground sprinklers front and back. Also included is the Chargepoint flex EV charger. Wow! [Home Energy Score = 7. HES Report at https://rpt.greenbuildingregistry.com/hes/OR10243071]
Holgate south on 61st
Dwelling Type: Residential
Subdivision: Arleta/Woodstock
Year Built: 1952, County: US
Holgate south on 61st
Listing is courtesy of John L. Scott
Sign in to your account to continue