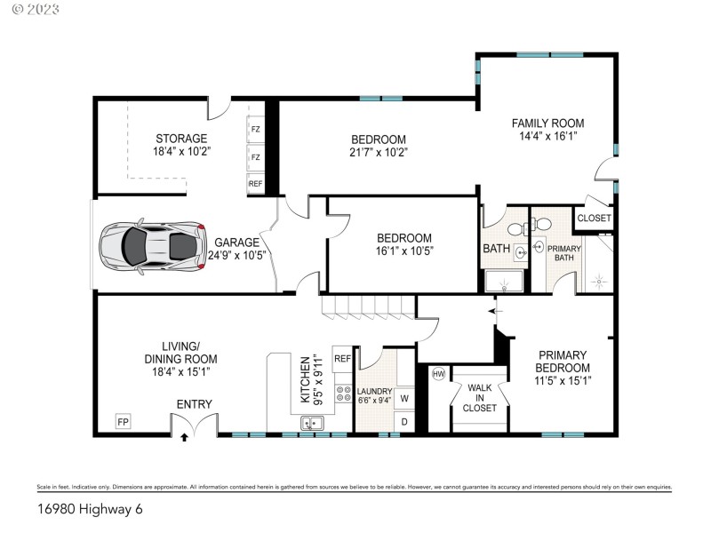
Welcome to your dream property located on the picturesque Wilson River Hwy! This charming 2-bedroom, 2-bathroom home + den with an attached garage has endless possibilities because of it's Community Commercial zoning designation. Set on a level 1.06 acre lot, this property offers not only a cozy residence but also an impressive collection of five outbuildings, second residence and ample space for your RV, sand toys, boats, storage and hobbies. Conveniently located near the boat launch for fishing or kayaking or watch in awe of the abundant wildlife that will venture down from the surrounding mountains. Don't miss this incredible opportunity to own a piece of real estate with immense potential! Schedule a viewing today and let your imagination run wild!
From Tillamook, East on Wilson River Hwy 6, Property on left after the 8 mile marker. Watch for sign
Dwelling Type: Residential
Subdivision: N/A
Year Built: 1950, County: US
From Tillamook, East on Wilson River Hwy 6, Property on left after the 8 mile marker. Watch for sign
Listing is courtesy of Rob Trost Real Estate LLC
Sign in to your account to continue