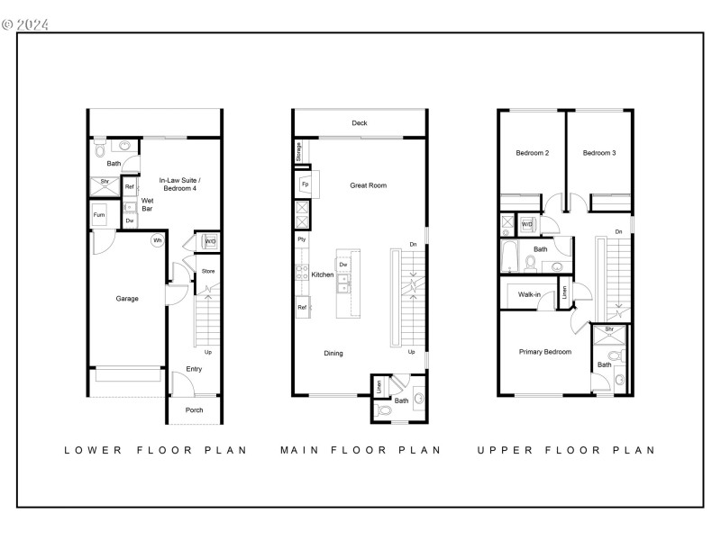
Only 3 townhomes still available! AC & refrigerators now included in all units! Welcome to Summa Village by local builder Laurel Crown Construction, a new community of contemporary townhomes nestled in the quiet, walkable community of King City in the heart of Bull Mountain. These townhomes are 4 bedrooms, 3.5 baths including a versatile in-law suite on the lower-level ideal for multigenerational living or utilize as separate rental unit to help supplement your mortgage. Features include an open concept floor plan on the main level with a gourmet kitchen, high ceilings, large kitchen island and sliding glass doors taking you out to a spacious deck and overlooking your own private backyard, perfect for entertaining. Additional highlights include a primary suite with large walk-in closet & en suite bathroom, 1-car garage, central heating & cooling, gas range, electric fireplace, stainless-steel LG appliances and LVP flooring & quartz countertops throughout. The lower-level in-law suite provides a unique opportunity for independent living having its own kitchenette with built-in dishwasher & microwave, laundry closet, full bathroom, and private covered porch & backyard. These townhomes live more like a single-family home with over 2,000 SF of open living space & spacious backyard. Enjoy the benefits of owning your own lot & home without all the maintenance. Abundant windows throughout the home allow natural light to fill this open concept floor plan. This community is located within walking distance to King City Community Park where you’ll find fun amenities like a sprawling park, sport courts and river access fun for the entire family. LOW HOA’s & BUILDER WARRANTY INCLUDED! Contact us today to schedule a tour and learn more about our PREFERRED LENDER INCENTIVES! Model home is open & available for tours Friday, 1pm-5pm & Saturday & Sunday, 12pm-5pm.
Head east on Pacific Hwy toward Old State Hwy 99W. Turn left onto SW Fischer Rd.
Dwelling Type: Residential
Subdivision: KING CITY
Year Built: 2024, County: US
Head east on Pacific Hwy toward Old State Hwy 99W. Turn left onto SW Fischer Rd.
Listing is courtesy of Summa Real Estate Group