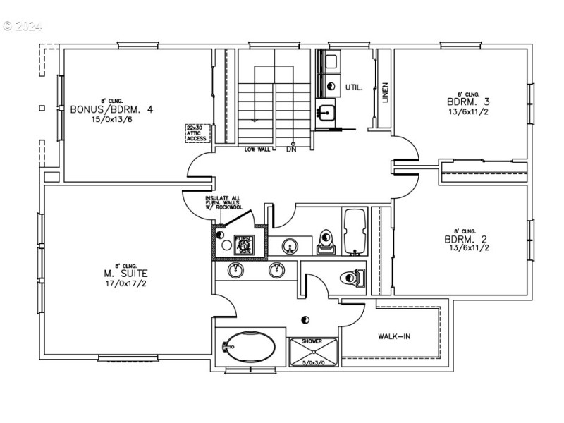
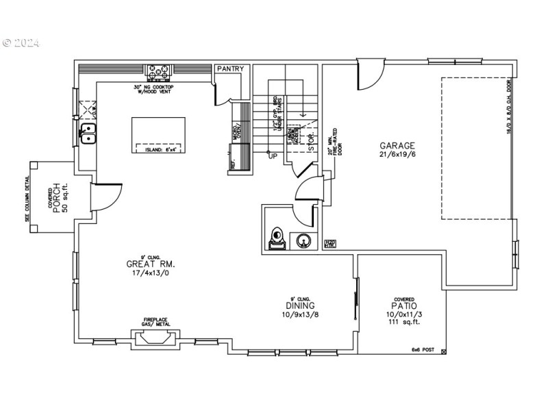
Ask Our Team About Our Closing Cost and/or Rate Buydown Opportunity! Don't Miss Out On The Rouge! Features an awesome kitchen space with tons of storage, sink with a view, and island for gathering! Relax in the spacious great room & host meals in your dining area featuring a slider that looks onto 10'x11' rear covered patio with bbq gas hookup and fenced yard area. Upgraded appliances include SS Whirlpool 36" cooktop and built in wall oven/micro, Broan chimney hoodvent. Primary suite will feature soaking tub, dual vanities, 5x3 tile wall shower with fiberglass pan, and HUGE walk-in closet. Price includes fenced yard, front & rear landscaping. [Home Energy Score = 9. HES Report at https://us.greenbuildingregistry.com/green-homes/OR10235090] [Home Energy Score = 9. HES Report at https://rpt.greenbuildingregistry.com/hes/OR10235090]
SE Blanton St; N on SE 83rd Ave; W on Quincy St, N on 81st, E on Cresent Dr. to Zavi Ln.
Dwelling Type: Residential
Subdivision: Reed's Crossing
Year Built: 2025, County: US
SE Blanton St; N on SE 83rd Ave; W on Quincy St, N on 81st, E on Cresent Dr. to Zavi Ln.
Listing is courtesy of Stone Bridge Realty, Inc
Sign in to your account to continue