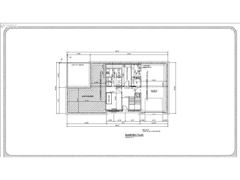
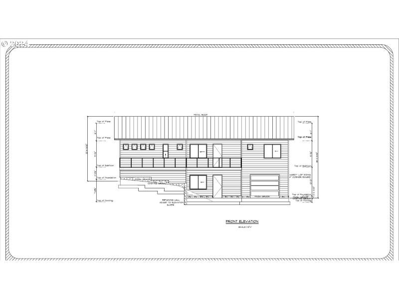
Discover a hidden gem! This .65-acre waterfront sanctuary rests on the peaceful shores of Netarts Bay, boasting breathtaking vistas of the Three Arch Rocks and Cape Lookout State Park. Tucked away at the end of a charming gravel drive, this private oasis awaits your vision. All essential documents on file including a geo-hazard report, septic approval, property survey, topographic survey and road approach permit, this property is as close to build ready as you'll find. Sale includes fully engineered, custom house plans for a thoughtfully designed, 2,100 square foot dwelling which is designed for a lower level mother-in-law suite with separate entrance. All utilities are readily accessible in the road. Surrounded by lush forest, the property offers unparalleled tranquility. Netarts Bay, renowned for its oysters, clams, and crab, promises a bounty of culinary delights just steps from your doorstep. Located a mere 10 minutes from the famed Tillamook Cheese Factory and an hour and a half from Portland, this coastal haven invites you to reconnect with nature. Embrace a lifestyle of endless exploration amidst pristine beaches, tranquil bays, and meandering rivers. Don't miss this rare opportunity to make your waterfront dreams a reality! Seller has completed permit process with Tillamook County Planning Department. Building and septic permits on file. SELLER FINANCING AVAILABLE. CALL FOR DETAILS!
From Tillamook: West on Hwy 131 towards beach. Left on Whiskey Creek Road. Right on Wee Willie Lane.
Dwelling Type: Land
Subdivision: N/A
Year Built: N/A, County: US
From Tillamook: West on Hwy 131 towards beach. Left on Whiskey Creek Road. Right on Wee Willie Lane.
Listing is courtesy of Rob Trost Real Estate LLC