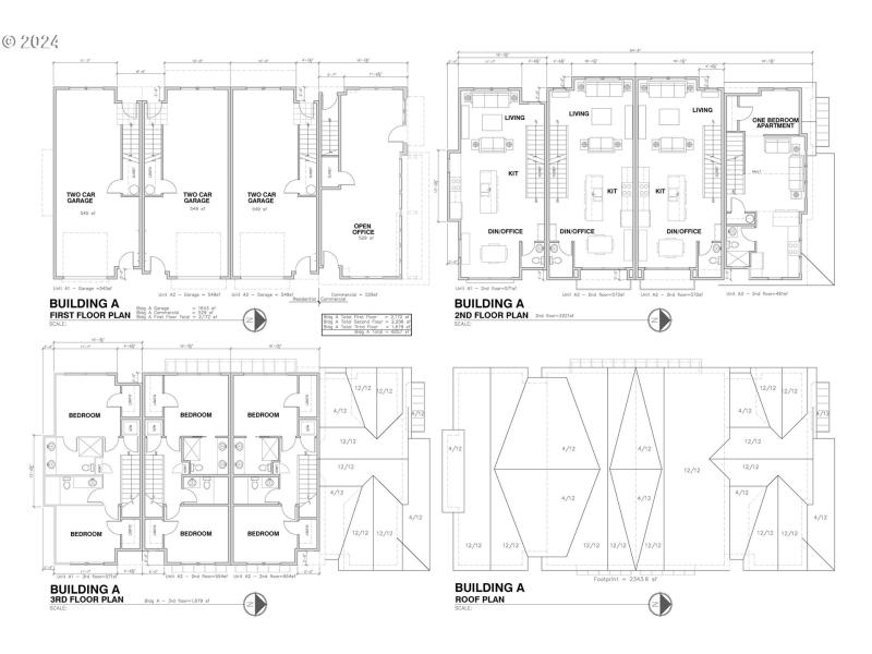
Location! Location! Location!  Level lot in excellent Lake Oswego location with Multitude of allowed uses. Flexible NC/R-0 zoning allows for a wide range of residential and commercial uses. The seller has been advancing approvals for an architecturally designed 7-unit mixed-use building. An extensive package of due diligence materials and engineering plans is available, with the public works portion needing to be revisited with the city, depending on final project. These attached renderings are PROPOSED and there is an existing 2440 SF single family dwelling onsite. Regardless of best use, this is a versatile property in a high-demand, walkable area of Lake Oswego. 
 Boones Ferry to Oakridge Rd (Property on the left) 
 
                                                        Dwelling Type: MultiFamily 
                            Subdivision: N/A 
                            Year Built: 2025, County: US 
                            Boones Ferry to Oakridge Rd (Property on the left)
                        
Listing is courtesy of Better Homes & Gardens Realty