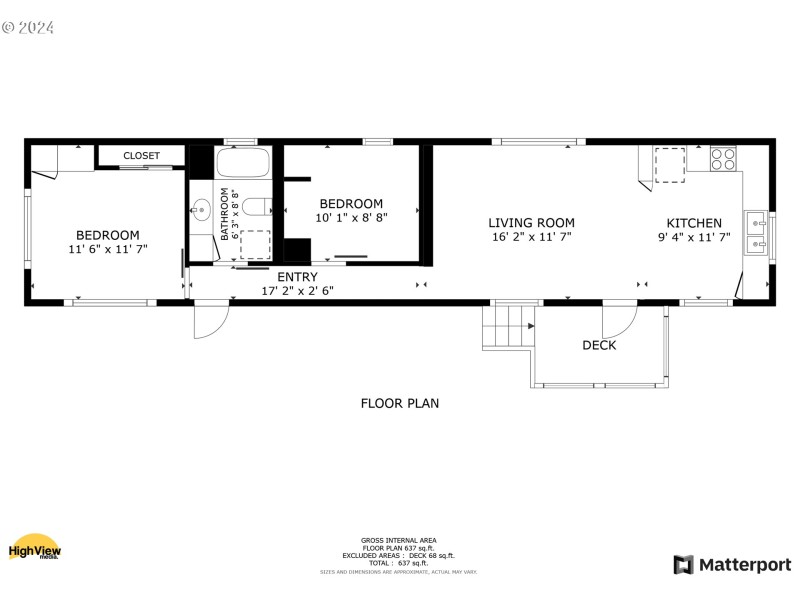
Imagine building your dream home on this private 24-acre retreat perched among the clouds, offering breathtaking views of the Three Sisters and the Coastal Range! Tucked at the top of a hill on a quiet dead-end road between Crow and Veneta, this spectacular property provides unmatched seclusion, serenity, and stunning natural beauty.A 1968 single-wide manufactured home currently offers a comfortable temporary place to live while you design and construct your ideal residence. The home features 2 bedrooms, 1 bathroom, and an open layout—perfect for settling in during the building process.For hobbyists, storage needs, or serious workspace, you’ll love the 60x80 shop complete with concrete floors and a raised storage platform. The property is thoughtfully laid out, offering excellent separation between the shop, the existing dwelling, and the future homesite.The cleared homesite is ready for your vision, with well, septic, and power already connected—saving time, money, and stress as you plan your build.If you’re seeking privacy, views, and the perfect canvas to create your forever home, this exceptional property delivers.
Territorial To Vaughn to Sturtevant
Dwelling Type: Residential
Subdivision: N/A
Year Built: 1968, County: US
Territorial To Vaughn to Sturtevant
Listing is courtesy of Keller Williams Realty Eugene and Springfield
Sign in to your account to continue