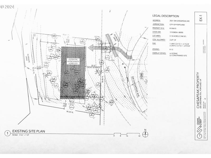
Greenhills lot w/territorial and sunset views poised in the desirable Council Crest neighborhood. Recent site plans from local architectural firm Giulietti Schouten Weber are available. Here's your opportunity to build a custom home, be it a main-level home with sunset views, a modular/container home, or a tiny home amongst the trees! Photos from Portlandmaps.com and from conceptual renderings done in anticipation for potential building. Photos 1-2 are conceptual when engineer's reports were done. Photos 3-4 are conceptual photos for modular/container homes. There is not home on the lot currently. Buyer to do due diligence regarding buildability & permitting. Geo/Soils reports available and surveys completed. Recorded easements for access and utilities also available. Lot in between addresses 4031 and 3921 SW Chesapeak. Lot has a wood fence across it. Okay to walk down the top 4 concrete steps, (please do not walk further) and walk inbetween the left side of fence, and the right side of the telephone pole to access the lot. NOTE: Lot is overgrown and sloped so enter at your own risk and please wear stable shoes.
Vacant lot Between 4031 and 3921 SW Chesapeak - behind fence
Dwelling Type: Land
Subdivision: COUNCIL CREST/HILLSDALE
Year Built: N/A, County: US
Vacant lot Between 4031 and 3921 SW Chesapeak - behind fence
Listing is courtesy of Windermere Realty Trust