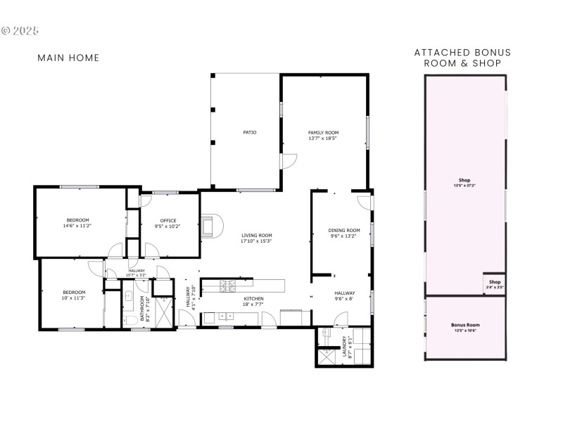
Stake your claim in the beloved Brentwood-Darlington neighborhood with this inviting single-level Ranch. The thoughtfully planned layout lives large. The kitchen - featuring hand-built custom cabinets, quartz countertops and a peninsula - opens seamlessly to the living room and extends into the dedicated dining area, creating the perfect hub for gathering. A second living space plus a laundry room with sink and shower add convenience and flexibility. On the opposite side of the home, you’ll find three comfortable bedrooms and a recently renovated full bath. An attached bonus room and workshop (additional unreported 640 sqft) provide unbeatable versatility - convert to an ADU, design the ultimate home office, create a media room, or house all your hobbies with ease. Step outside to a fully fenced backyard ripe for enjoyment. Grow your dream garden or entertain year-round on the covered deck. The Brentwood-Darlington neighborhood offers a warm, community-focused vibe with a relaxed, residential feel. Residents enjoy easy access to local shops, schools, and community gardens, while being just minutes from Woodstock, Sellwood, and other vibrant SE Portland districts. This home is ready to meet your needs today and adapt to your dreams tomorrow! [Home Energy Score = 2. HES Report at https://rpt.greenbuildingregistry.com/hes/OR10187162]
Flavel St >> 72nd >> Harney St >> 78th Ave
Dwelling Type: Residential
Subdivision: BRENTWOOD - DARLINGTON
Year Built: 1966, County: US
Flavel St >> 72nd >> Harney St >> 78th Ave
Listing is courtesy of Coldwell Banker Bain
Sign in to your account to continue