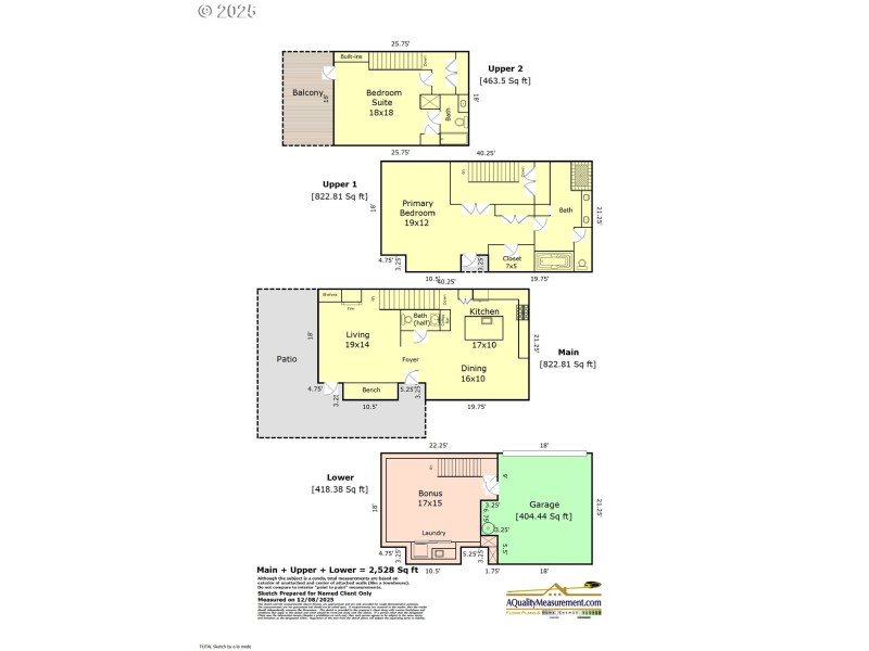
West-facing riverfront corner townhome in NW Portland’s highly sought-after Riverscape community, offering beautiful river and mountain views with exceptional walkability. This light-filled residence features high ceilings and expansive windows that capture afternoon light and sunsets over the Willamette. The open-concept great room is anchored by a contemporary plaster-surrounded fireplace with a soapstone hearth, creating a warm yet modern focal point. The gourmet kitchen is thoughtfully designed with marble countertops, custom cabinetry, and high-end appliances, ideal for both everyday living and entertaining.The primary suite provides a private retreat with its own balcony, two closets, and a spa-inspired bathroom. A second bedroom suite includes a rooftop terrace, while an additional private fourth-story patio offers elevated outdoor living—perfect for relaxing, dining, or enjoying the surrounding scenery. A flexible lower-level family room adds space for media, office, or guest use.Practical amenities include an attached 2-car garage with a dedicated EV charger, full laundry room with sink, abundant storage, and thoughtful design throughout. Located directly along the waterfront trail and just minutes to Slabtown, the Pearl District, NW 23rd, dining, shopping, parks, and downtown Portland. Walk Score 76 (Very Walkable). Bike Score 95 (Biker’s Paradise). A rare opportunity for refined riverfront living with privacy, convenience, and modern style.
W Front, Right to NW 17th, walk path to River and Home
Dwelling Type: Residential
Subdivision: N/A
Year Built: 2008, County: US
W Front, Right to NW 17th, walk path to River and Home
Listing is courtesy of Christie's International Real Estate Evergreen
Sign in to your account to continue