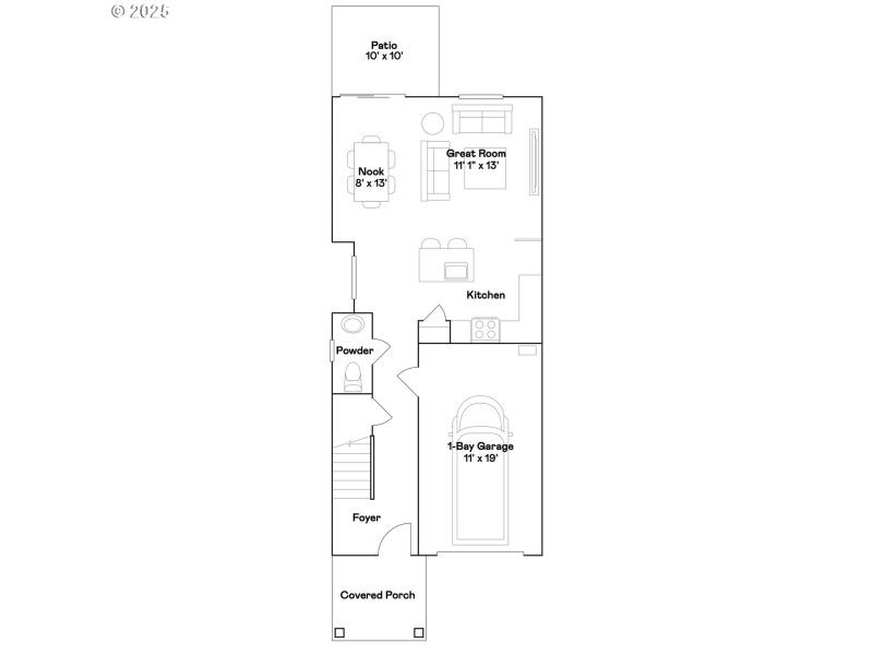
This new construction home is located in South River Terrace, a connected community with excellent schools, freeway access, onsite parks with sport courts and playgrounds, and proximity to shopping, dining, golf, and scenic greenspace. The Oliver plan offers a functional three-level design with the first floor showcasing an open kitchen, dining area, and great room with fireplace that lead out to a patio and fenced, landscaped yard. The second floor provides three bedrooms, including the spacious primary suite with a private bath and walk-in closet, while a versatile bonus room fills the third level and can serve as a home office, media room, or play space. Interior highlights include quartz countertops, Shaker-style cabinets, LVP flooring in the kitchen and entryway, LVT flooring in the baths, two-tone interior paint, full landscaping, and fencing. This home also includes central air conditioning, a refrigerator, washer and dryer, and blinds—all at no extra cost! Located on homesite 1, this home is expected to be complete in fall 2025. Rendering is artist conception only. Photos are of a similar home, features and finishes will vary. Below-market rate incentives are available when financing with our preferred lender.
Follow OR-99W S Pacific Hwy W and SW Bull Mountain Rd to SW 165th Ave in Tigard to Lennar Homes
Dwelling Type: Residential
Subdivision: N/A
Year Built: 2025, County: US
Follow OR-99W S Pacific Hwy W and SW Bull Mountain Rd to SW 165th Ave in Tigard to Lennar Homes
Listing is courtesy of Lennar Sales Corp