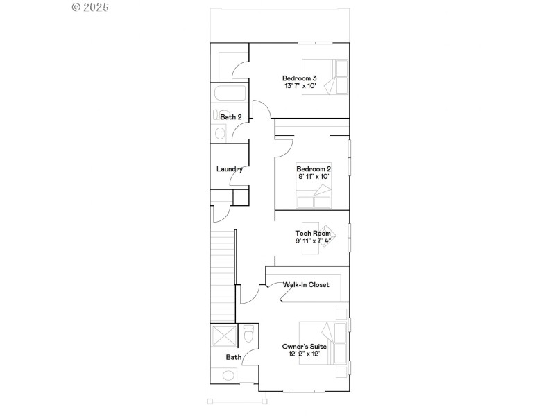
New Construction, MOVE-IN READY, Brynhill Community, Homesite 398. The Great Room, kitchen and dining room share an open floorplan on the first level of this two-story home. All three bedrooms occupy the second level while a convenient tech space is great for working from home and there's a two-car garage and convenient street parking out front. The private and spacious owner's suite features an attached bathroom and a walk-in closet. Photos are of a model home and finishes may vary. Ask about builder incentives!
US-26 to Glencoe Rd north, left on North Ave, right on 309th, Left on Brookings to the Model Home
Dwelling Type: Residential
Subdivision: LENNAR AT BRYNHILL
Year Built: 2025, County: US
US-26 to Glencoe Rd north, left on North Ave, right on 309th, Left on Brookings to the Model Home
Listing is courtesy of Lennar Sales Corp
Sign in to your account to continue