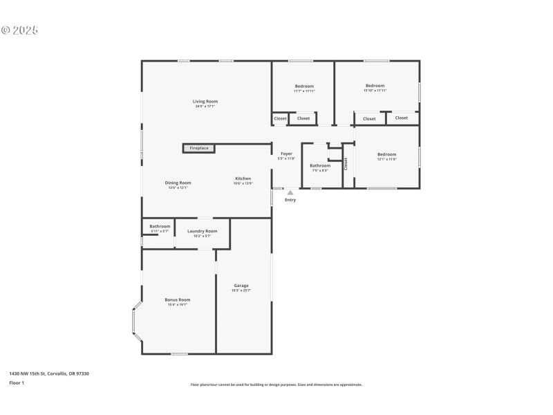
You'll never want to leave this backyard! A secluded, beautifully landscaped sanctuary on Dixon Creek w/ mature trees, garden beds, patios, a sauna, & detached art studio/office. Well-maintained, single-level home packed with charm w/ sprawling wood floors, fireplace, skylights, a tastefully updated kitchen w/ cherry cabinets & large island, and custom bathroom tile work. New 50 year roof, Energy Star furnace, A/C, electrical panel, & gas water heater. Attached 2 car garage and space for RV parking.
From NW Grant Ave, North on NW 15th Street. Home is on the left
Dwelling Type: Residential
Subdivision: N/A
Year Built: 1964, County: US
From NW Grant Ave, North on NW 15th Street. Home is on the left
Listing is courtesy of Windermere Willamette Valley