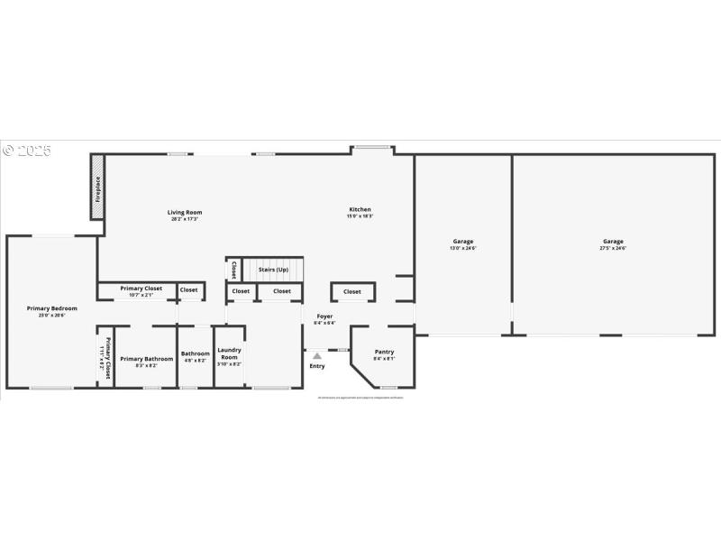
Beautiful 1.5-story home offering 3 beds, 2 & 1/2 baths. The main level features an open layout with a large living area, dining space, and kitchen. The kitchen was custom built by its owner, an excellent woodworker, with quality craftsmanship and unique detail. Generous windows providing natural light. Owner’s suite and full bath conveniently located on the main floor. An office space on the main level adds flexibility for remote work, study, or additional living needs. Upstairs includes additional bedrooms. The backyard is a retreat with expansive patio space, a covered seating area, and a small tree house. Exterior highlights include lap siding, an 3-car attached garage, and a large lot. This home offers style with room to make it your own. Conveniently located to schools, shopping, dining, and easy access to I-5 and I-205. (Some photos are virtually stage)
I5, W on 119th st,R on NW 21st, R on NW 124th st, L on NW 20th Ave, L on NW 127th st, R on NW 21st
Dwelling Type: Residential
Subdivision: FELIDA COMMUNITY
Year Built: 1978, County: US
I5, W on 119th st,R on NW 21st, R on NW 124th st, L on NW 20th Ave, L on NW 127th st, R on NW 21st
Listing is courtesy of John L. Scott Real Estate