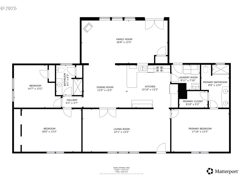
Sandy Solitude on three acres with fruit trees, a greenhouse, and plenty of fenced room to play! City water, septic for sewer, a shed to store your gardening and hobby gear, with a spacious, single level home. Cuddle up in the Family Room with the Certified Wood Stove and watch the birds while your 3 Apple Trees, Almond Tree, and 2 Hazelnut Trees bear fruit and nuts for Autumn Treats! Start your Summer garden in your greenhouse! Enjoy two large bedrooms - each with its own attached bathroom, a large Living Room AND a Large Family Room with a generous Kitchen between them in this easy-living, roomy floor plan filled with natural light. Check out the floor plan to start laying out your furniture! There is plenty of parking for your RV, Boat, and vehicles! There are small projects that need to be finished so you can add your own touches to make it your own. Access via a ramp and minimal steps facilitate mobility. This is a special place in the peace and quiet of beautiful Sandy, Oregon.
HWY 26, South on SE Sandercock Lane to property - follow directionals to property
Dwelling Type: Residential
Subdivision: Sandy
Year Built: 2014, County: US
HWY 26, South on SE Sandercock Lane to property - follow directionals to property
Listing is courtesy of Wildwood Realty
Sign in to your account to continue