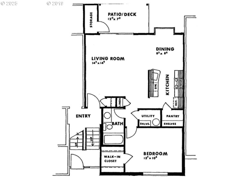
Welcome to the 55+ community at Summerfield Brookside Condos. This ground level 1-bedroom, 1-bathroom suite features easy access from both the front and back of the property. This bright and spacious unit has brand new laminate flooring in the open living room and dining areas, with constant views of the back courtyard and patio. The modern kitchen and its walk-in pantry make mealtime a pleasure. An updated shower stall awaits you with safety aids and new design. Your bedroom features a walk-in closet, brand new carpeting and tiled base at the large vinyl window. The utility room with a stacked washer and dryer unit makes laundry time a breeze. Enjoy the peace and quiet times out on your private covered patio, with flower beds, bird feeders, and trees. A place for your golf clubs, and possessions is simple with the built-in storage room right off your patio.Your Summerfield community offers an array of amenities, the Clubhouse with its library, lounge, game rooms, fitness center and activities. Meet all the active neighbors while enjoying the swimming pool, tennis, pickle ball, or a round of golf on the 9-hole golf course. This little piece of heaven awaits you, come join us now!
99W - Durham - Summerfield - Meadowbrook - Left to 10955
Dwelling Type: Residential
Subdivision: SUMMERFIELD BROOKSIDE CONDO
Year Built: 1980, County: US
99W - Durham - Summerfield - Meadowbrook - Left to 10955
Listing is courtesy of MORE Realty
Sign in to your account to continue