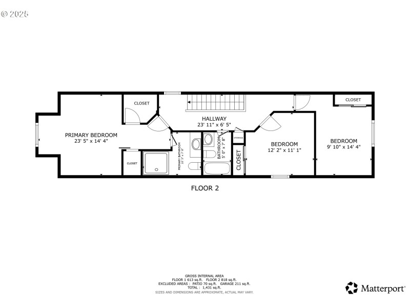
Meet your Piedmont home! This newer construction cutie is move-in ready and oh-so-easy to maintain—just bring your personal flair and settle right in! The airy, open-concept main floor seamlessly connects to your own private, flat backyard—ideal for summer barbecues, lazy afternoons, or playtime with pets and friends. Head upstairs and you’ll find three roomy bedrooms, including a dreamy primary suite complete with not one, but two walk-in closets—hello, storage goals! And bonus: all appliances are included, making moving in a breeze. Plus, you’re just minutes from beautiful Farragut Park and some of Portland’s top-rated schools. This is one you don’t want to miss! Mortgage savings may be available for buyers of this listing. [Home Energy Score = 7. HES Report at https://rpt.greenbuildingregistry.com/hes/OR10219357]
Xstreet - N Missouri Ave
Dwelling Type: Residential
Subdivision: N/A
Year Built: 2005, County: US
Xstreet - N Missouri Ave
Listing is courtesy of Redfin
Sign in to your account to continue