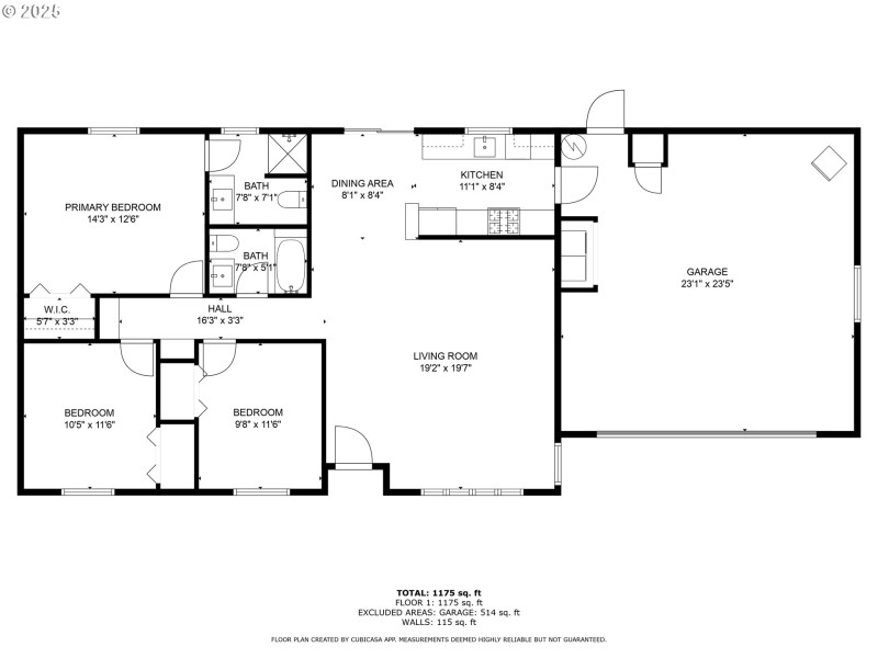
Wecoma Beach ~ Oregon Coast is beckoning YOU home! Everyone says this smaller inviting home lives larger than it's sq. ft. suggests! Come on out and check it out for yourself. 1 story, 3 bd/2 ba on lg. .24 lot. This is your chance to live on a Peaceful tree lined lane, where you'll feel alive as you inhale the peaceful sea air. Relax to the sound of ocean waves. Beach entrances are just down the way. Set up for your magical interludes: Featuring interior updates and cozy outdoor spaces! Large covered deck plus: 8'x8' open air deck for your entertaining pleasure. ''Dance the night away'' or Bask in the beauty that IS the Oregon Coast! There's even an 10'x12'x14' Gazebo for your romantic interludes. Fenced for your fur babies! Lg .24 acre. Desirable updates include: Quartz counters, painted kitchen cabinets, and interior paint 5 years ago. HWH, garbage disposal, front bathroom sink/cabinet, toilet and flooring and back bathroom toilet in 2025. Walk-in Tub in hall bath for easier access. Large 576 sq ft garage with driveway to fit 2-4 cars or your toys! ''Beachy'' landscaping featuring, 2 large (10'x12') quality sheds for all your storage needs! Smaller 8'x10' yard implement shed. Shopping, golf, great food & an eclectic selection of entertainment close by N and S. Come Home and while away the hours enjoying natures majesty. Fall in love with YOUR new Oregon Coast Retreat! Bring your vision to create your forever home, vacation home or retirement home! This home has SO much potential! Investors: R1.5 zoning, possible vacation rental? Buyer to do due diligence on all aspects of property or uses, etc.
Hwy 101 W onto NW 36th St, Slight L. onto NW Port continue onto NW 35th.
Dwelling Type: Residential
Subdivision: N/A
Year Built: 1978, County: US
Hwy 101 W onto NW 36th St, Slight L. onto NW Port continue onto NW 35th.
Listing is courtesy of eXp Realty, LLC
Sign in to your account to continue