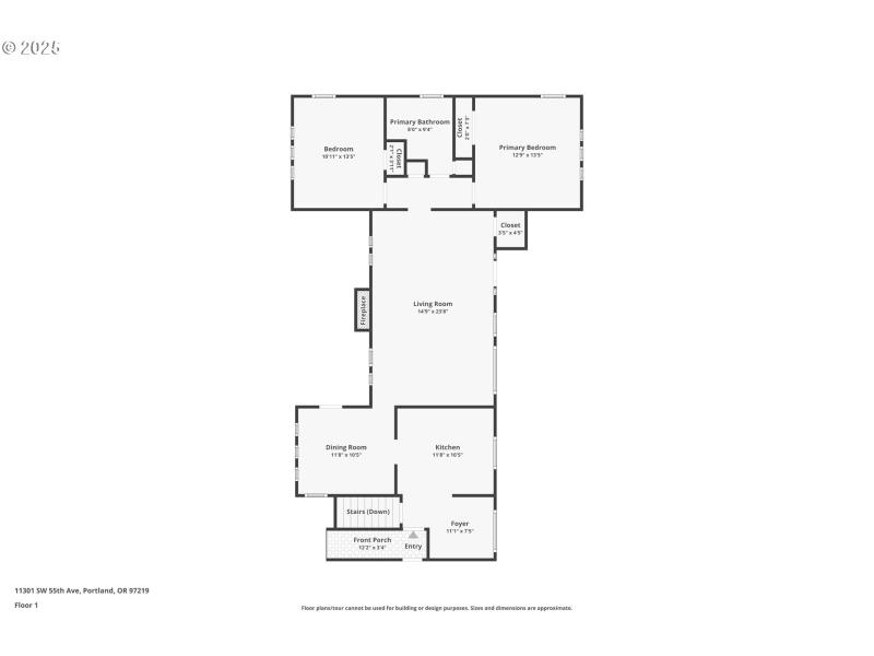
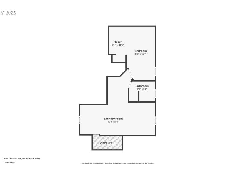
Best value in town! High end finishes double sized lot this home ihas it all. Your own Oasis in the city! Tree lined yard, manicured landscaping a Gardners delight, this home has it all! High end luxury finishes with resurfaced Oak hardwood floors, newer kitchen, newer bath w/marble surround shower, towel warmer, newer fireplace insert, lower-level bedroom, family area w/a full bath. Outside is complemented with a new large deck in the back, & a covered patio w/mature trees, landscaping & a fireplace in the front, making this the perfect outdoor living area & gathering spot all year round! [Home Energy Score = 5. HES Report at https://rpt.greenbuildingregistry.com/hes/OR10133114]
Capitol Highway to Palatine to the Property at 55th.
Dwelling Type: Residential
Subdivision: FAR SOUTHWEST
Year Built: 1941, County: US
Capitol Highway to Palatine to the Property at 55th.
Listing is courtesy of John L. Scott
Sign in to your account to continue