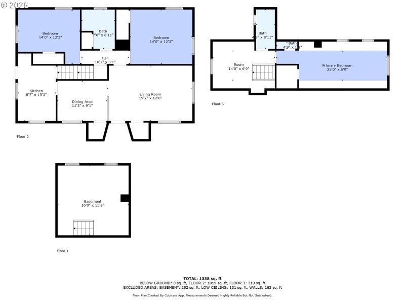
Welcome to 3801 SE 72nd, a timeless Tudor full of warmth and character. WOW, 8000 square foot lot. This spacious 3-bedroom (+ Bonus area), 2-bath home offers the perfect blend of original charm and thoughtful updates. The upstairs primary suite provides a private retreat, while the main level accommodates everyday living with ease. Step outside to a generous fenced backyard with alleyway access. Recent improvements include a newer roof, fresh updates inside and out, and a move-in-ready feel. Nestled in a desirable neighborhood on an oversized lot, this home is ready for its next chapter. Buyers to verify all information. Trustee is a licensed Real Estate Agent in Oregon. [Home Energy Score = 1. HES Report at https://rpt.greenbuildingregistry.com/hes/OR10242039]
SE Powell BLVD to SE 72nd
Dwelling Type: Residential
Subdivision: N/A
Year Built: 1948, County: US
SE Powell BLVD to SE 72nd
Listing is courtesy of eXp Realty, LLC