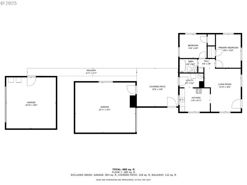
Need shop space? This has just approximately 800 sf of shop...ready for your tools, your toys or hobbies. The house...Cute, clean adorable two bedroom 1 bath is turn key and ready for new owner! Upgrades to this home include fresh paint through out, new carpet, spacious kitchen w/tile backsplash, vinyl windows. Lovely and private covered patio w/ freshly poured concrete including walkway to back of property. Backyard is fenced. New Siding. New roof. Oversized single car garage has spacious shop area and another garage w/ access off alley has RV door. This home is darling and ready to go!
Nichols to Florida
Dwelling Type: Residential
Subdivision: N/A
Year Built: 1946, County: US
Nichols to Florida
Listing is courtesy of RE/MAX Premier Group
Sign in to your account to continue