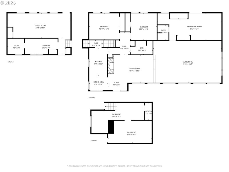
PEACEFUL LIVING AND WIDE OPEN SPACES. This versatile estate offers both agricultural potential and rural charm. Nicely updated 3 bed, 3 bath home with 2,982 total square feet (m/l) on 187.28 acres (m/l) dryland wheat ground. Butter Creek runs through the property adding to the natural charm. Well appointed kitchen with hickory cabinets, solid surface counters, Jenn-Air gas stove and double oven for your culinary adventures. Newer floors, large primary suite and family room open to private patio area. Could be a great horse property. New Generac generator for automatic back-up power. 16 miles to Echo, OR, 18 miles to Hermiston, OR. 20 miles to Lexington, OR. Few neighbors, quiet surroundings and stunning views.
Hwy 207 Echo, Or.
Dwelling Type: Residential
Subdivision: N/A
Year Built: 1963, County: US
Hwy 207 Echo, Or.
Listing is courtesy of Coldwell Banker Farley Company
Sign in to your account to continue