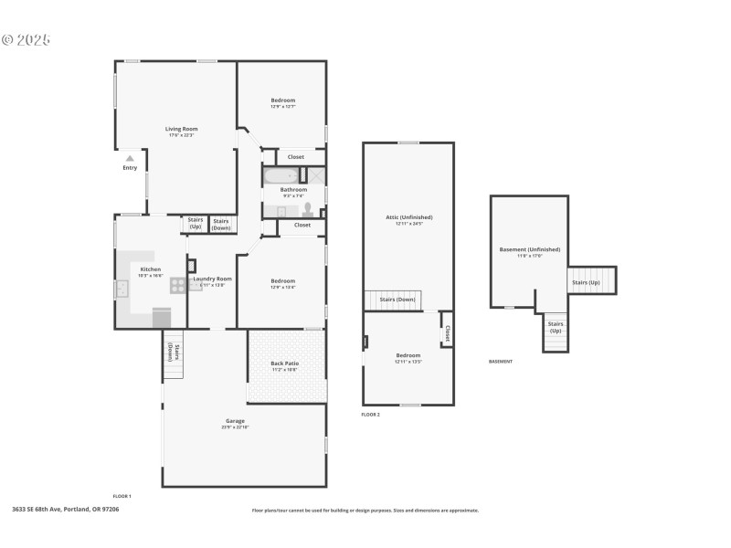
Move-in ready FOPO Cape Cod on a rare double lot, with three access points! This solid, three-bedroom, one-bath home offers immediate equity, whether you’re looking to make simple cosmetic updates or explore the possibilities and development potential of this 8,000 sqft lot. The main level offers a functional layout, a large living room, dining room, and generously sized kitchen – so much potential to make it your own! The upper level offers plenty of additional square footage, easily finished to add bedrooms, a home office, or flex space. Outside, enjoy a lush, oversized yard with mature landscaping, thoughtfully designed raised garden beds, and a large Tuff Shed—perfect for outdoor enthusiasts or the aspiring green thumb. New main water line in 2020, and a newer electrical panel. An attached one-car garage adds convenience, shop space, and extra storage. Don’t miss this rare opportunity to own this solidly built home on one of the last remaining double lots in Foster-Powell – just blocks from Kern Park and all of your favorite FoPo spots! This is an as-is sale. [Home Energy Score = 1. HES Report at https://rpt.greenbuildingregistry.com/hes/OR10241182]
Powell, S on SE 68th
Dwelling Type: Residential
Subdivision: FOSTER - POWELL
Year Built: 1949, County: US
Powell, S on SE 68th
Listing is courtesy of Premiere Property Group, LLC