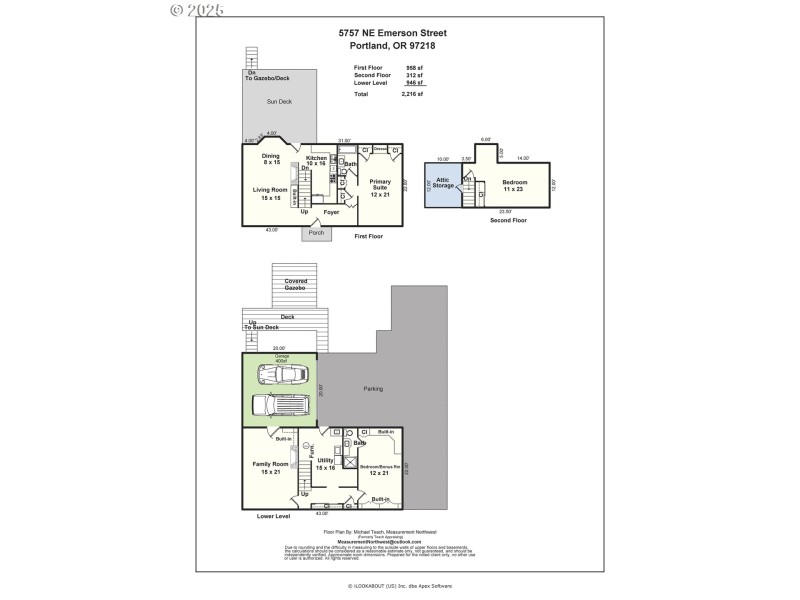
This charming Cape Cod was once the apple barn for the Emerson apple orchard. Converted to a home in the 1950s, it has since been updated to the pristine home it is today. Spectacular fenced backyard with space for gardening & entertaining on the sun deck or in the covered gazebo. Attached garage & plenty of parking in the oversized driveway! The large, open living/dining room is flooded by light with windows on three sides & a gas fireplace surrounded by classic built-ins. Updated kitchen with stainless appliances, tile backsplash, quartz counters & custom cabinets. The elegant kitchen leads to the very large sun deck above the garage. The primary bedroom on the main level has custom wainscoting, several closets & an updated full bath. The cheerful bedroom upstairs has an adjacent oversized storage space. The finished basement has two separate exterior entrances, making it prime for hobbies or potential as an ADU. Enjoy movies in the media room with its own wood-burning fireplace. The lower level also includes a bedroom with an ensuite full bath, desk space, several built-in cabinets & closets. The clean, bright laundry room has a sink and its own access to the exterior. Energy efficient updates include all the windows on the entire house have been replaced with double-pane windows and upgraded rigid spray foam & cellulose insulation. Updated systems include central AC & furnace in 2021, water heater in 2016, & roof in 2011. Move-in ready perfection! New Season's, Kennedy School, Beaumont Village, Fernhill Park, Colwood & Rose City golf courses, & endless shops, cafes & restaurants in every direction, plus easy access to the airport! [Home Energy Score = 5. HES Report at https://rpt.greenbuildingregistry.com/hes/OR10241252]
NE 60th to Emerson
Dwelling Type: Residential
Subdivision: N/A
Year Built: 1933, County: US
NE 60th to Emerson
Listing is courtesy of Windermere Realty Trust