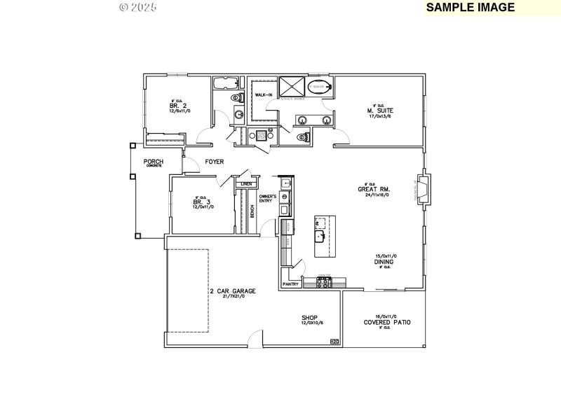
This comforting open-concept home combines style and thoughtful design. The spacious great room features a cozy gas fireplace with a floating box-beam mantel and flows seamlessly into the dining area, which opens to a 16' x 11' covered patio—ideal for entertaining or unwinding outdoors. The gourmet kitchen showcases mission shaker-style alder cabinetry with multiple upgrades, sleek slab quartz countertops in both the kitchen and bathrooms with coordinating backsplash and accent tile, and premium stainless-steel Whirlpool appliances—including a five-burner gas cooktop, double wall oven, wall microwave, dishwasher, and chimney hood vent. Elegant Delta Woodhurst plumbing fixtures in a bold black finish elevate the bathrooms, while the luxurious primary suite offers a spa-like retreat with a 5' x 4' all-tile shower, relaxing garden tub, dual-sink vanity, and expansive walk-in closet. Additional highlights include front and rear landscaping with fencing and gate, a tankless water heater, central A/C, and Earth Advantage Certification for exceptional energy efficiency and sustainability.
North on Cedar Hill Blvd until it becomes NW 113th. Left on NW Kearny St. Rt. on NW Josephine Ter.
Dwelling Type: Residential
Subdivision: N/A
Year Built: 2026, County: US
North on Cedar Hill Blvd until it becomes NW 113th. Left on NW Kearny St. Rt. on NW Josephine Ter.
Listing is courtesy of Stone Bridge Realty, Inc
Sign in to your account to continue