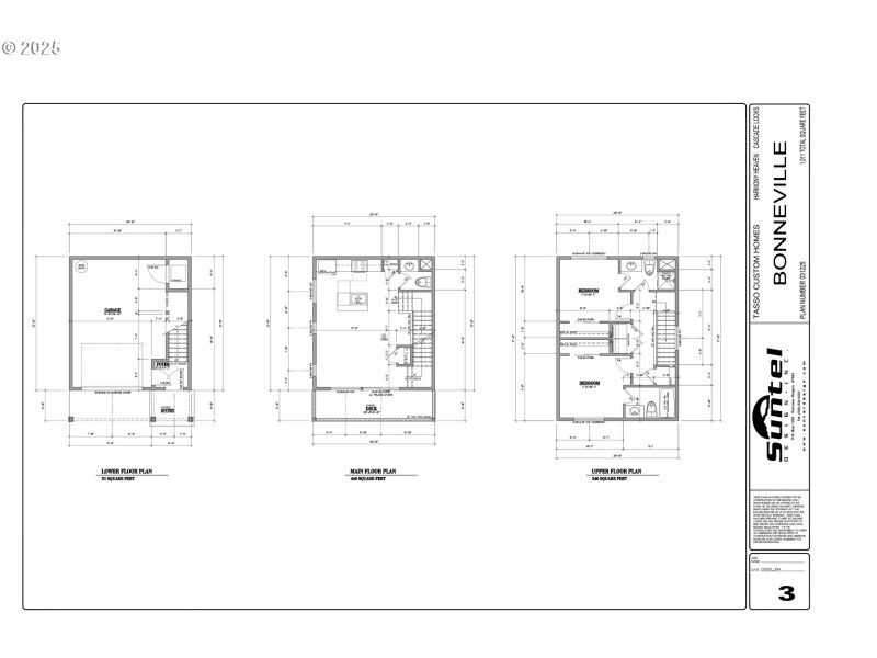
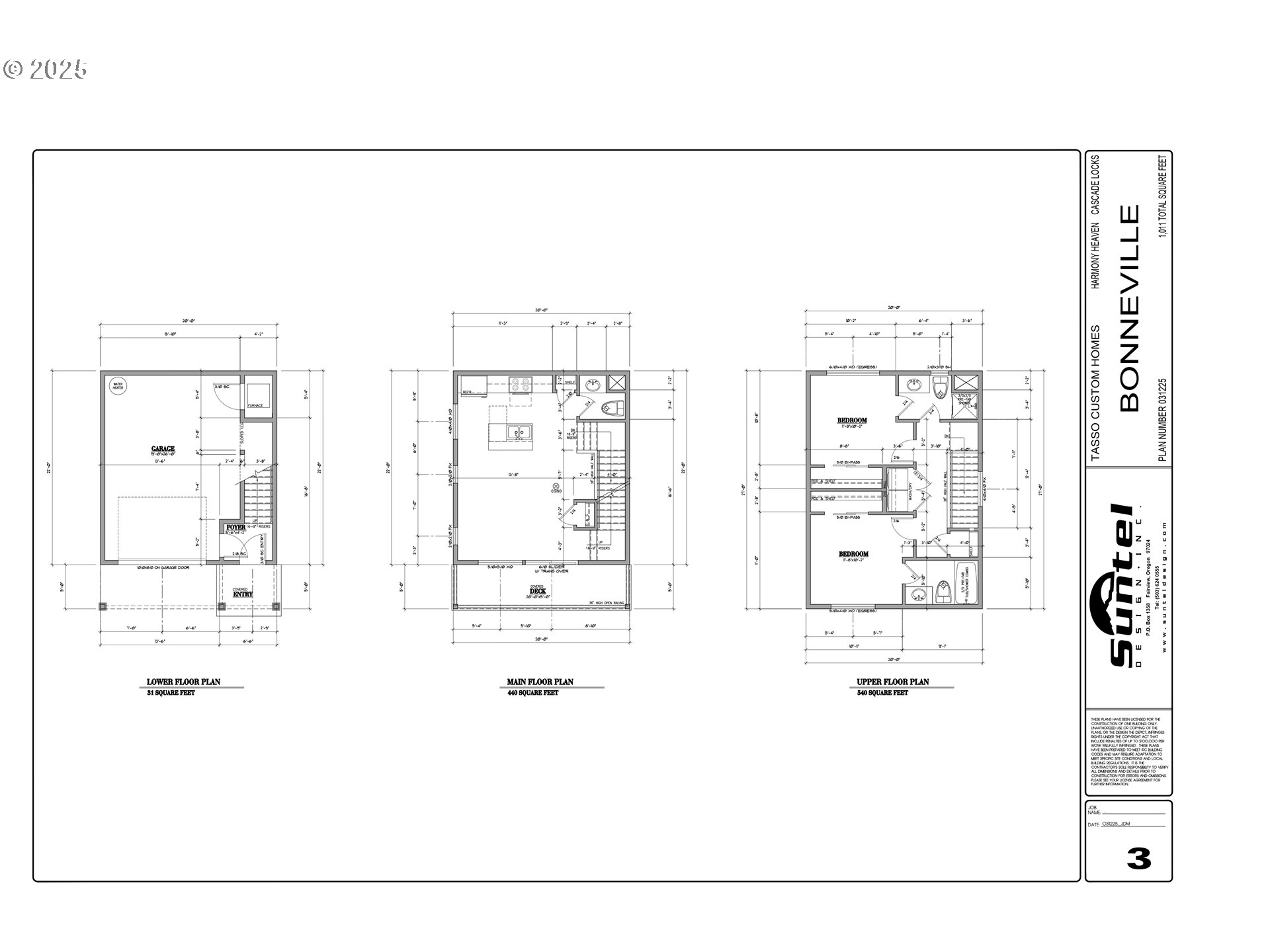
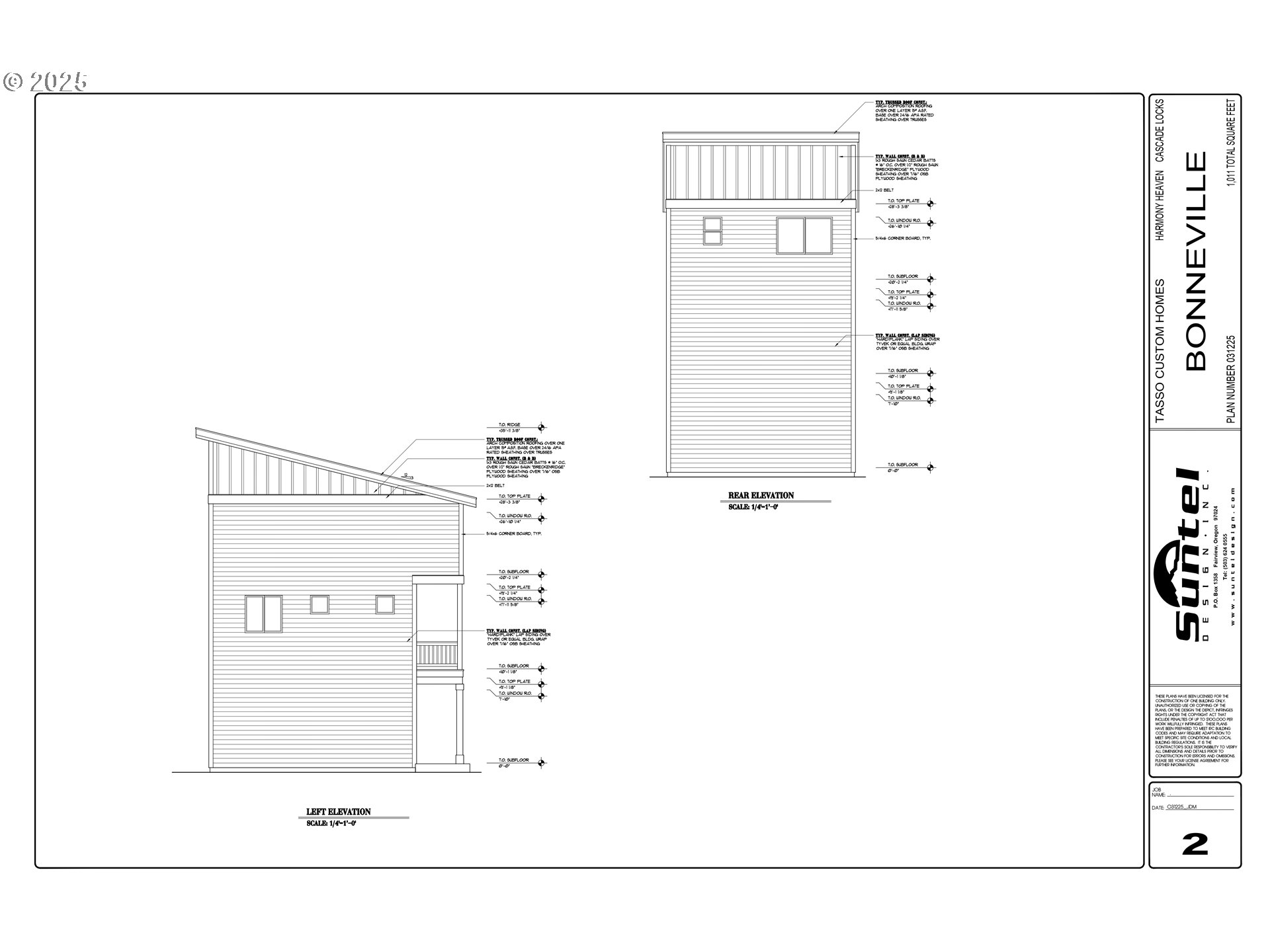
Affordable New Constuction Coming To Cascade Locks, Many plans to Choose From, Kitchen Island 2 Bedroom, 2 Bath, LVT/LVP Flooring, Custom Soft Close Cabinets, Pantry, Big Front Deck, Walk to Town, Other Lots and Plans Available, 1/2 Blk To Pacific Crest Trail, Completion 11/30
I-84 to Cascade Locks Exit 44 to Right on Venture to right on Moody to Undine to Sternwheeler
Dwelling Type: Residential
Subdivision: HARMONY HEAVEN
Year Built: 2025, County: US
I-84 to Cascade Locks Exit 44 to Right on Venture to right on Moody to Undine to Sternwheeler
Listing is courtesy of Realty One Group Prestige
Sign in to your account to continue