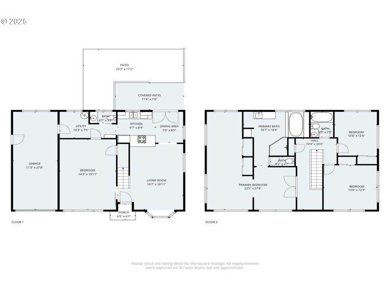
Step inside to a comfortably designed living space with a focus on light and functionality. The main floor features a living room with a big bay window. The galley kitchen boasts granite countertops, a convenient breakfast bar, and French doors that lead directly out to a lovely covered patio—perfect for year-round outdoor cooking and dining. This home offers great flexibility with a one-car garage that opens into a laundry room, complete with a half bath, easily converted to a whole bath. The laundry room conveniently connects to the kitchen and the 4th bedroom. This downstairs room, with its half-bath access, can easily serve as a comfortable downstairs primary suite, a family room, a private office, or a formal dining room, adapting perfectly to your needs. Ascend the stairs to find a full bathroom along with 3 total bedrooms, one being your own private sanctuary: a huge upstairs primary suite. Massive windows and skylights bathe the room in natural light. The exquisite en-suite bathroom is a true retreat, featuring tile work, a glass-stall shower, a luxurious and deep jetted tub for ultimate relaxation, and tons of storage. As a final touch of convenience, the primary bathroom also includes a dedicated laundry chute! Outside, the large lot offers a tiered raised garden bed right off the covered patio—ideal for cultivating your kitchen herbs or flowers. Tucked away in the bottom corner of the yard is a serene cove with a fire pit, a perfect spot for cozy evenings and marshmallow roasting. This versatile home offers a premium location, remarkable indoor-outdoor living, and a truly stunning primary suite. This highly sought-after area offers incredible access to Eugene's best amenities; moments away from shopping and dining. Outdoor enthusiasts will adore the proximity to Eugene's extensive park and trail systems. This home has a lot to offer; the perfect blend of suburban tranquility and urban accessibility, just waiting for your touches.
S on Chambers, R on W 28th, L on Garfield
Dwelling Type: Residential
Subdivision: N/A
Year Built: 1971, County: US
S on Chambers, R on W 28th, L on Garfield
Listing is courtesy of United Real Estate Properties
Sign in to your account to continue