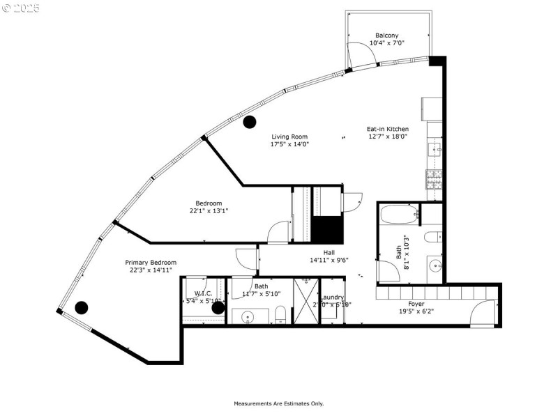
Truly live among all the action when you live at The Civic, a LEED Gold certified building! This Northeast facing 2 bedroom, 2 bathroom unit is a smashing deal, with cherry wood floors, walls of windows (don't worry, the primary bedroom has blackout blinds!), a balcony, 2 deeded parking spaces in the secure garage and 24-hour concierge services. Custom built in storage in the entryway is an organizer's dream, and this unit is immaculate! Enjoy your rockstar parking and access to Timbers and Thorns games, PLUS concerts at Providence Park, the Multnomah Athletic Club, Zupan's, downtown the Pearl & Alphabet Districts and the list goes on! You must check it out!
W Burnside and SW 19th
Dwelling Type: Residential
Subdivision: Providence Park
Year Built: 2006, County: US
W Burnside and SW 19th
Listing is courtesy of Corcoran Prime
Sign in to your account to continue